EasyManua.ls Logo

Delabie TEMPOMATIC - Page 2

Delabie TEMPOMATIC
4 pages
Print Icon
To Next Page IconTo Next Page
To Next Page IconTo Next Page
To Previous Page IconTo Previous Page
To Previous Page IconTo Previous Page
Loading...
E
*:
GB: Compulsory housing unit (not supplied)
D
E: Erforderliche Montagedose nicht im Lieferumfang enthalten
PL: Obowiązkowa skrzynka (brak w zestawie)
NL: Verplichte inbouwkast (niet meegeleverd)
*
*:
GB: An isolation point upstream (e.g. isolating switch, combined fuse box, etc.)
DE: Vor Transformator geschaltete Trennsicherung (bspw. Lasttrennschalter,
S
icherungsträger, etc...)
PL: Urządzenie odcinające przed transformatorem (np. rozłącznik, bez-
piecznik, etc…)
N
L: Cheidingsschakelaar te plaatsen vóór de transformator
A
2
30Vca
c
offret
obligatoire
non fourni*
moyen de séparation en amont
d
u transformateur (ex. interrupteur sectionneur,
p
orte fusible combiné, etc.)**
12Vca
MH
T
ME
DR
IR (6m maxi)
~
1 m
3
0
0
m
m
Largeur* : 130
* : GB: Width
DE:
Breite
PL:
Szerokość
NL:
breedte
C
B
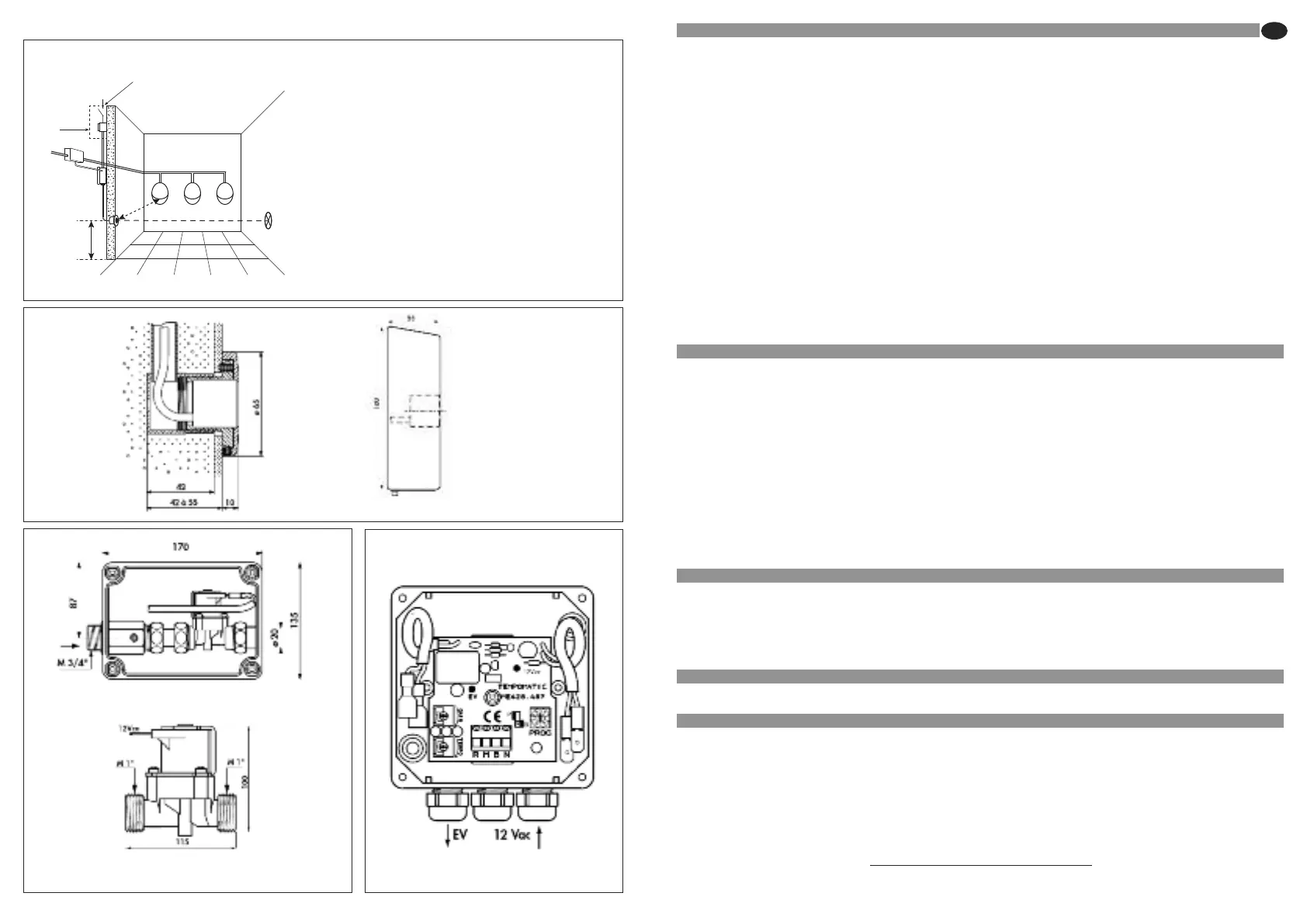
INSTALLATIE (Fig. A et B)
E
LEKTRISCHE AANSLUITING
De installatie dient te gebeuren overeenkomstig de geldende normen in het land van plaatsing (in Frankrijk NF C 15-100).
Installeer onze veiligheidstransformator (beschermd d.m.v. een smeltveiligheid) ref. 406000, conform de norm EN 60742, ofwel in een
elektrische schakelkast ofwel op een bestaand verdeelpaneel.
• Plaats een differentieel schakelaar voor de transformator.
Draden dienen vast geplaatst te zijn in een draadklem of kabelgoot.
• Verbind de transformator met de elektronische module d.m.v. een standaardsnoer van 2 x 1mm².
• Bevestig de elektronische module (ME) op de muur, buiten de natte zone, met een isolerende schroef en sluitring.
• Verbind het detectiesnoer met de RMBN klemmen van de elektrische module:
-
Rode draad: klem R
-
Blauwe draad: klem M
-
Witte draad: klem B
- Zwarte draad: klem N
• Plaats de detectie op ongeveer 1 m van de vloer, en op ongeveer 30 cm voor de urinoirs. De detectie wordt geleverd met een mantelsnoer van max. 5
m. Niet verkorten noch verlengen.
WASSERANSCHLUSS (Fig.C)
• Aanbevolen werkingsdruk tussen 1 en 5 bar. Bereken de diameter van de buizen in functie van het gelijktijdig debiet van alle urinoirs, rekening houdend
met het lastverlies.
Benodigd debiet: 0,15 l/s voor een gewoon urinoir – 0,5 l/s voor een zelfsifonerend urinoir.
Notwendige Durchflussmenge: 0,15 l/secr ein Standard-Urinal, 0,5 l/secr ein Absaugurinal.
• Befestigen Sie das Hydraulik-Modul und verbinden es mit dem Versorgungsnetz.
• Verbind het elektroventiel van de hydraulische module met het snoer “EV”, gebruik hiervoor een tweeaderig snoer (2 x 0,75 mm²).
WERKING/AFREGELING (Fig. D)
• Bij de inbedrijfstelling van het toestel, zal de gele LED “12Vac” in de elektronische sturing oplichten.
• Lijn de reflector uit door ze te verplaatsen op de muur t.o.v. de detectie – afstand 1 tot 6 meter. De rode LED in de detectie, die de uitlijning van
de barrière controleert, licht op wanneer de reflector correct geplaatst is. Deze LED gaat uit wanneer de infrarood straal onderbroken wordt.
• De groene LED in de elektronische sturing licht op wanneer het elektroventiel geactiveerd wordt (onderbreking van de infrarood straal).
• Regel het ogenblikkelijk debiet d.m.v. de stopkraan van de hydraulische module.
• Regel het debiet per urinoir (zie debietbegrenzer 927 015).
• Indien nodig regel de looptijd (5 tot 15 sec.) d.m.v. de potentiometer (TEMPO) in de elektronische sturing. Het wordt aanbevolen de potentio-
meters niet op de minimum- noch op de maximumstand te plaatsen.
Werking zonder manueel contact.
Voorspoeling bij aankomst van de eerste gebruiker (2 sec.)
Spoeling na 60 sec. – prog. Stand 4 – (mogelijkheid om een spoeling uit te voeren na 30 sec. door de keuzeknop PROG op stand 5 te plaatsen).
• In geval van drukte, spoeling elke 30 sec. of elke minuut zonder voorspoeling mogelijk.
• Automatische veiligheid: in geval van wangebruik/kwaad opzet of na 20 ononderbroken cycli gaat het toestel in veiligheidsstand. Van zodra de
infrarood barrière hersteld is, kan het kraanwerk opnieuw gebruikt worden.
Dagelijkse spoelcyclus elke 12 uur.
AANBEVELINGEN
Ons kraanwerk moet door een vakman geplaatst worden volgens de voorschriften, de beschrijving van het studiebureel en de regels der kunst.
Respecteer de benodigde diameters van de leidingen om waterslagen of druk/debietverliezen tegen te gaan. (zie de berekeningstabel in de catalogus of
op www.delabie.nl)
Bescherm de installatie met filters, waterslagdempers of drukregelaars en beperk zo het onderhoud (Aanbevolen druk: 1 tot 5 Bar).
Plaats stopkranen in de nabijheid van het kraanwerk om eventuele onderhoudswerken te vergemakkelijken.
• De leidingen, stopkranen, tapkranen en andere sanitaire toestellen dienen zo vaak als nodig gecontroleerd te worden of toch minstens 1x per jaar.
ONDERHOUD EN REINIGING
Reinigen van chroom: Gebruik nooit schuurmiddelen en chloorhoudende of andere chemische producten: reinig met zeepwater en een zachte doek of spons.
Vorstvrij stellen: Spoel de leidingen en stel de kraan enkele keren na elkaar in werking zodat ze volledig geledigd wordt.
ONDERHOUD
• Modulaire constructie: elektronische sturing, hydraulische sturing, en transformator zijn afzonderlijk toegankelijk. Vereenvoudigde diagnose
d.m.v. controleLEDS.
N
L
Dienst na verkoop en technische ondersteuning:
Tel.: + 32 (0)2 520 16 76 e-mail : sav@delabiebenelux.com
De laatste bijgewerkte versie van deze folder is beschikbaar op www.delabie.nl

Other manuals for Delabie TEMPOMATIC

Related product manuals