EasyManua.ls Logo

Delfield UC4048 - Installation Note

Delfield UC4048
2 pages
Print Icon
To Previous Page IconTo Previous Page
To Previous Page IconTo Previous Page
Loading...
980 S. Isabella Rd.
Mt. Pleasant, Michigan 48858
Phone: 800-733-8948 or 989-773-7981
Fax: 800-669-0619
www.delfield.com
UC4000 Series
Self-Contained Undercounter Refrigerator/Freezer
Printed in the U.S.A.
DSUC4000
01/11
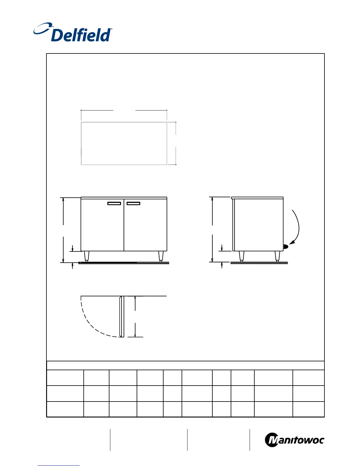
Specifications
Model # Of
Shelves
Shelf
Area
Volume H.P. V/Hz/Ph Amps NEMA
Plug
Ship Weight Energy
(KWH/Day)
Refrigerator
UC4048
4 8.0ft
2
10.80ft
3
1/5 115/60/1 4.0 5-15P 236lbs/107kg 2.04
Freezer
UC4148
4 8.0ft
2
10.80ft
3
1/3 115/60/1 5.6 5-15P 236lbs/107kg NA
INSTALLATION NOTE:
Refrigeration system is designed so that air will
flow under the unit, through the compressor area
and out the top rear of the unit. Any restriction to
this air flow path will void the warranties.
Deleld reserves the right to make changes to the design or specications without prior notice.
Plan View
Models UC4048 And UC4148
21.75”
55 cm
Door Clearance Detail
Models UC4048 And UC4148
Elevation View
Models UC4048 And UC4148
6.00”
15 cm
35.50”
90 cm
End View
Models UC4048 And UC4148
6.00”
15 cm
1.00”/2.5cm
Rubber
Bumper
35.50”
90 cm
48.06"
122.07 cm
28.38"
72.08 cm
48.06”
122 cm
28.50”
72 cm

Related product manuals