EasyManua.ls Logo

Delta DVP-SV - Safety Wiring; Input Point Wiring; Output Point Wiring

Delta DVP-SV
19 pages
Print Icon
To Next Page IconTo Next Page
To Next Page IconTo Next Page
To Previous Page IconTo Previous Page
To Previous Page IconTo Previous Page
Loading...
- 5 -
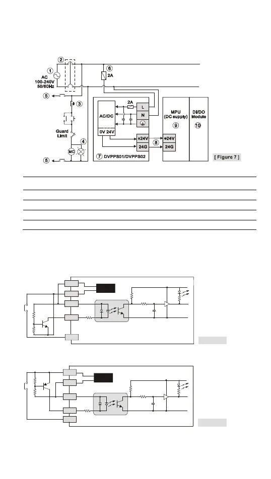
Safety Wiring
Since DVP-SV/SV2 is only compatible with DC power supply, Delta’s power supply
modules (DVPPS01/DVPPS02) are the suitable power supplies for DVP-SV/SV2. We
suggest you install the protection circuit at the power supply terminal to protect
DVPPS01 or DVPPS02. See the figure below.
1
AC power supply: 100 ~ 240VAC, 50/60Hz
2
Breaker
3
Emergency stop: This button cuts off the system power supply when accidental
emergency takes place.
4
Power indicator
5
AC power supply load
6
Power supply circuit protection fuse (2A)
7
DVPPS01/DVPPS02
8
DC power supply output: 24VDC, 500mA
9
DVP-PLC (main processing unit)
10
Digital I/O module
Input Point Wiring
There are 2 types of DC inputs, SINK and SOURCE. (See the example below. For
detailed point configuration, please refer to the specification of each model.)
DC Signal IN – SINK mode
Input point loop equivalent circuit
+24V
24G
S/S
X0
24VDC
X1
[ Figure 8 ]
DC Signal IN – SOURCE mode
Input point loop equivalent circuit
+24V
24G
S/S
X0
24VDC
X1
[ Figure 9 ]
Output Point Wiring
1. DVP-SV/SV2 has two output modules, relay and transistor. Be aware of the
connection of shared terminals when wiring output terminals.
2. Output terminals, Y0, Y1, and Y2, of relay models use C0 common port; Y3, Y4, and
Y5 use C1 common port; Y6, Y7, and Y10 use C2 common port; Y11, Y12, and Y13

Related product manuals