EasyManua.ls Logo

Delta E6-TL-US

Delta E6-TL-US
73 pages
To Next Page IconTo Next Page
To Next Page IconTo Next Page
To Previous Page IconTo Previous Page
To Previous Page IconTo Previous Page
Loading...
16
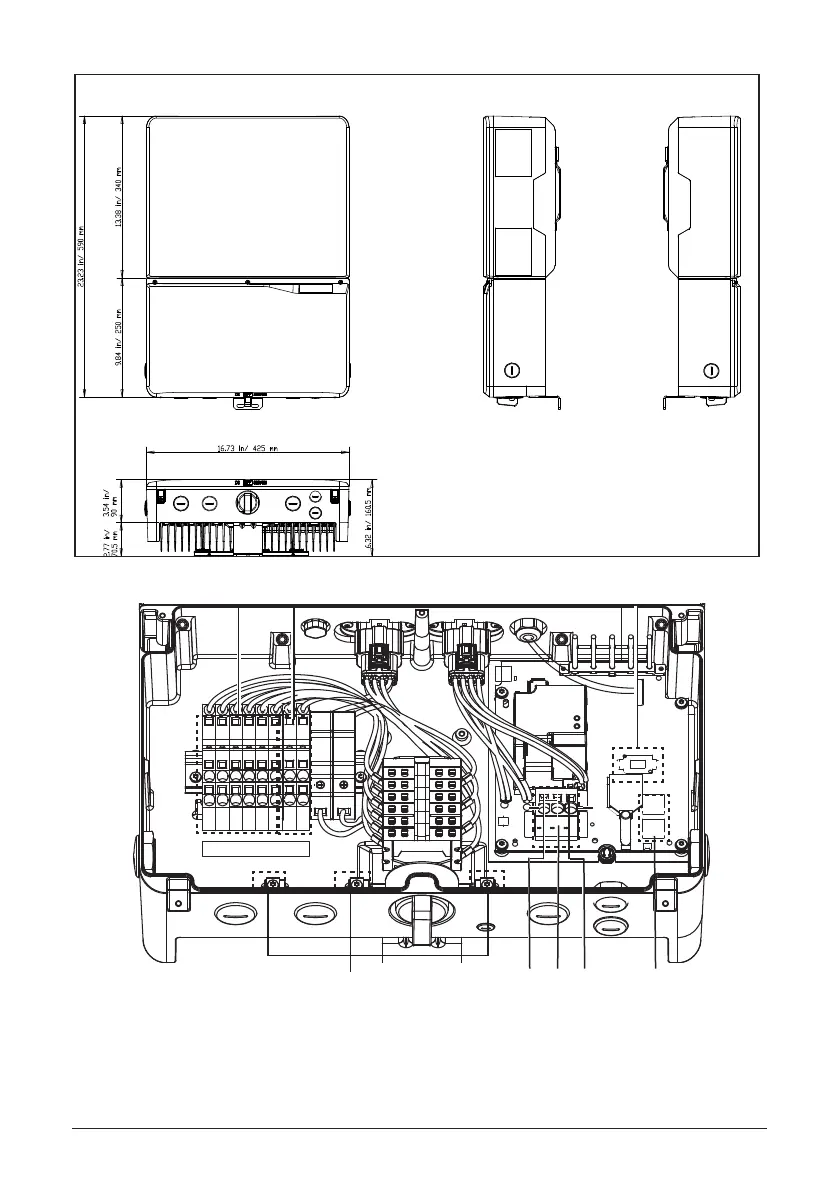
Figure 8: Dimensions of Delta E Series
inverters
PV PV PV PV PV PV BAT+ BAT-
1+ 2+ 3+ 1- 2- 3-
(4)
(7)
(2)(1)
(1) PV terminals
(2) BAT terminals
(3) Reset button
(4) Grounding
(6)
(5) AC side L1
(6) AC side Netural
(7) AC side L2
(8) RS485 communication ports
(8)
(5)
Figure 9: Wiring box of E series inverters
(3)

Related product manuals