EasyManua.ls Logo

Delta VFD007EL43W - Installation with Metal Separator; Installation Without Metal Separator

Delta VFD007EL43W
197 pages
Print Icon
To Next Page IconTo Next Page
To Next Page IconTo Next Page
To Previous Page IconTo Previous Page
To Previous Page IconTo Previous Page
Loading...
Chapter 1 Introduction
VFD-EL-W
1-10
CAUTION!
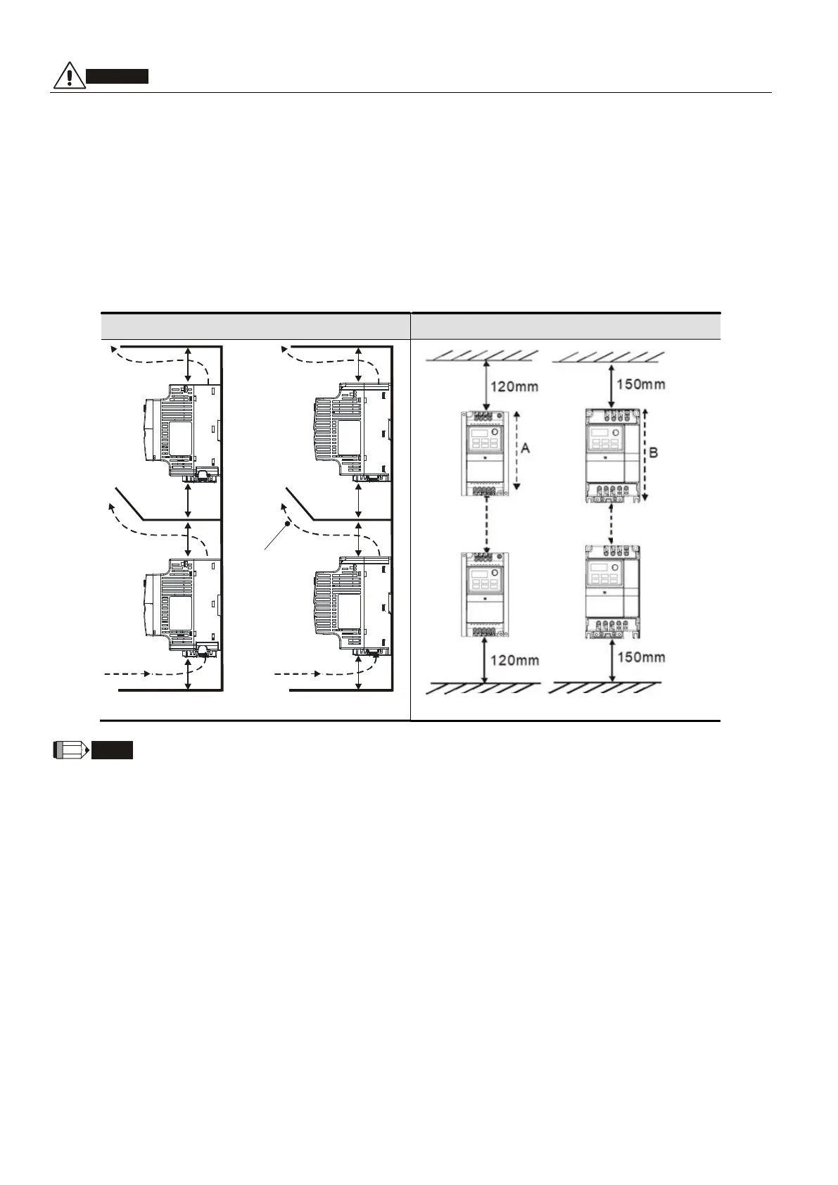
1. Mount the AC motor drive vertically on a flat vertical surface with screws. Other mounting directions are not
allowed.
2. The AC motor drive generates heat during operation. Allow sufficient space around the unit for heat
dissipation. When you install the AC motor drive in a confined space (for example a cabinet), the surrounding
temperature must be meet specifications of operation (as shown in chapter 1.2.1) with good ventilation. DO
NOT install the AC motor drive in a space with poor ventilation.
3. The heat sink temperature may rise to 90°C when running. The metallic material on which the AC motor
drive is mounted must be noncombustible, be excellent at thermal dissipation and be able to withstand this
high temperature.
4. When installing multiple AC motor drives in the same cabinet, mount them in a row with enough space
between for ventilation. When installing one AC motor drive below another one, use a metal separator
between the AC motor drives to prevent mutual heating.
Installation with Metal Separator Installation without Metal Separator
Air flow
Frame A
Frame B
120mm
120mm
120mm
120mm
150mm
150mm
150mm
150mm
NOTE
Prevent fiber particles, scraps of paper, shredded wood, sawdust, metal particles, etc. from adhering to the
heat sink.
Install the AC motor drive in a metal cabinet to prevent the risk of fire accident.
A
B
Frame B
Frame A

Table of Contents

Related product manuals