EasyManua.ls Logo

Delta VFD055C43A-21 - Page 1236

Delta VFD055C43A-21
1259 pages
Print Icon
To Next Page IconTo Next Page
To Next Page IconTo Next Page
To Previous Page IconTo Previous Page
To Previous Page IconTo Previous Page
Loading...
Chapter 17 Safe Torque Off Function | C2000 Plus
17-5
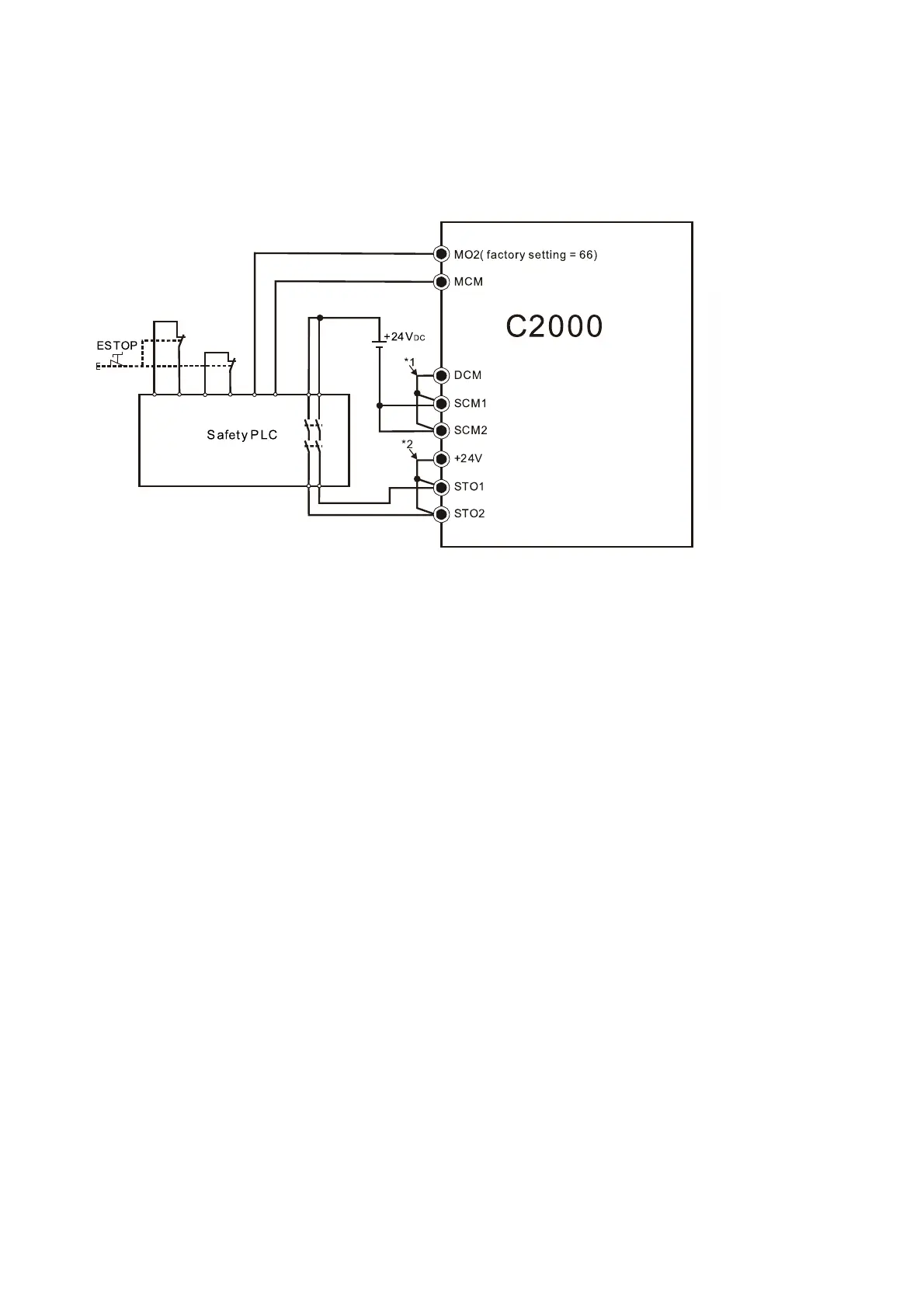
17-3-3 The control loop wiring diagram:
1. Remove the short-circuit of +24V-STO1-STO2 and DCM-SCM1-SCM2.
2. The wiring as below diagram. The ESTOP switch must be at Close status in normal situation, and
the drive will be able to RUN.
3. STO mode, switch ESTOP open. The drive output stops and keypad displays STO.
NOTE:
*1. Default short-circuit of DCM-SCM1-SCM2. Remove the short-circuit to use the Safety function.
*2. Default short-circuit of +24V-STO1-STO2. Remove the short-circuit to use the Safety function.
Plus

Table of Contents

Related product manuals