EasyManua.ls Logo

Delta VFD1320CP43B-21 - Page 226

Delta VFD1320CP43B-21
868 pages
Print Icon
To Next Page IconTo Next Page
To Next Page IconTo Next Page
To Previous Page IconTo Previous Page
To Previous Page IconTo Previous Page
Loading...
Chapter 7 Optional AccessoriesCP2000
7-117
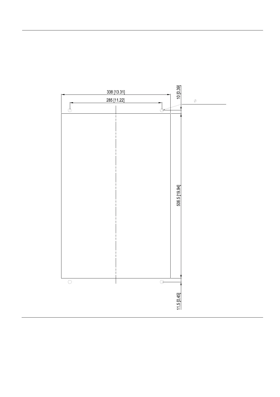
Frame D
Applicable model
VFD370CP23A-00; VFD370CP23A-21; VFD450CP23A-00; VFD450CP23A-21; VFD750CP43B-00;
VFD750CP43B-21; VFD900CP43A-00; VFD900CP43A-21; VFD450CP63A-00; VFD450CP63A-21;
VFD550CP63A-00; VFD550CP63A-21
Cutout dimension Unit: mm [inch]
M10*P1.5(4X)
OR
11.0[0.43](4X)

Table of Contents

Related product manuals