EasyManua.ls Logo

Delta VFD1320CP43B-21 - Page 242

Delta VFD1320CP43B-21
868 pages
Print Icon
To Next Page IconTo Next Page
To Next Page IconTo Next Page
To Previous Page IconTo Previous Page
To Previous Page IconTo Previous Page
Loading...
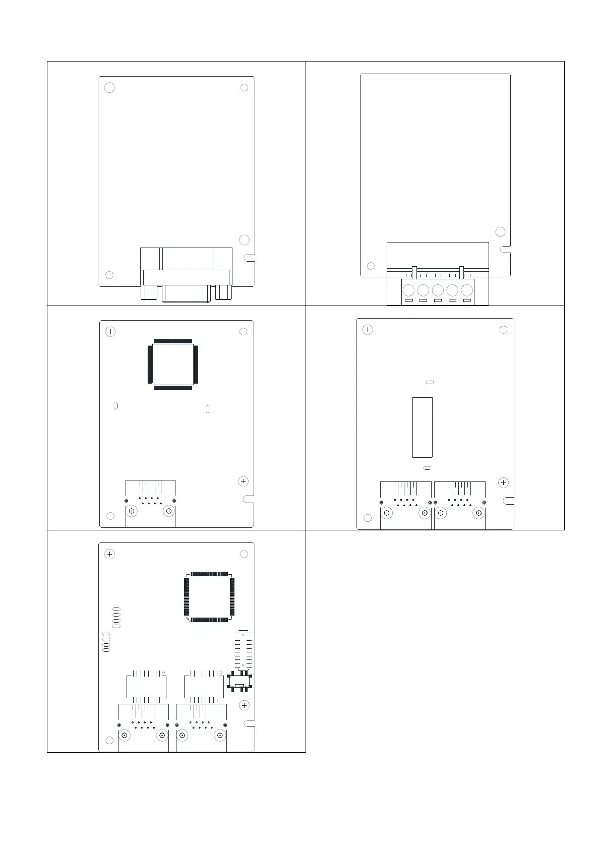
Chapter 8 Option CardsCP2000
8-5
Communication extension card (Slot 1)
CMC-PD01
CMC-DN01
CMC-EIP01
EMC-COP01
CMC-PN01

Table of Contents

Related product manuals