EasyManua.ls Logo

Delta VFD1600C43A-21 - Page 777

Delta VFD1600C43A-21
1259 pages
Print Icon
To Next Page IconTo Next Page
To Next Page IconTo Next Page
To Previous Page IconTo Previous Page
To Previous Page IconTo Previous Page
Loading...
Chapter 12 Description of Parameter SettingsC2000 Plus
12.2-22
8. Adjust the setting of FOC speed observer and per-unit value of inertia (common problems)
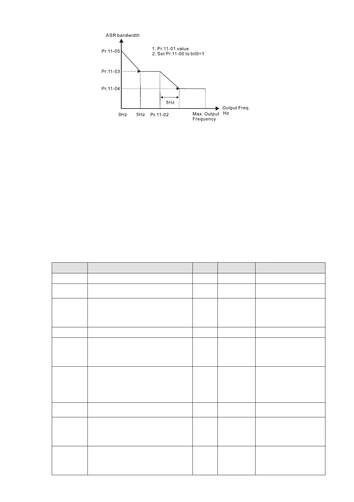
Pr.10-25: Set up FOC bandwidth of speed observer
Situation 1. Speed command changes rapidly, but speed response cannot follow.
(Speed response is too slowIncrease the setting value)
Situation 2. The noise of the observer is too large, and causes the operation diverged.
(Speed noise is too largeDecrease)
Pr.11-01: Set up per unit of system inertia
Situation 1. The inrush current is too high at start-up, and causes an oc error.
Situation 2. An ocn error occurs during RUN or STOP, and the motor runs randomly.
a. Check Pr.11-01 whether the JM per-unit of system inertia is too large.
b. Decrease Pr.10-25 FOC bandwidth for speed observer or Pr.11-05 zero-speed bandwidth.
IMFOC Sensorless adjustment parameters
Refer to Section 12-1 Description of Parameter Settings for more details
Parameter Description Unit Default Settings
00-11 Speed control mode 0 0–8
01-01 Motor 1 Rated / Base Frequency Hz
60.00 /
50.00
0.00–599.00
01-02
Motor 1 Rated / Base Output
Voltage (V
AC
)
V
Depending
on the
model
power
Depending on the
model power
05-00 Motor parameter auto-tuning 0 0–13
05-02
Rated power for induction motor
1 (kW)
kW
Depending
on the
model
power
0.00–655.35
05-03
Rated speed for induction motor 1
(rpm)
rpm
Depending
on the
motor’s
number of
poles
0–xxxx
(Depending on the
motor’s number of
poles)
05-04
Number of poles for induction motor
1 (poles)
4 2–64
05-05
No-load current for induction
motor 1 (A)
Depending
on the
model
power
0.00–Pr.05-01 default
05-06
Stator resistance (Rs) for induction
motor 1 (Ω)
Ω
Depending
on the
model
power
0.000–65.535

Table of Contents

Related product manuals