EasyManua.ls Logo

Delta VFD25AMS23ANSAA - NEMA 1; UL Type 1 Kit

Delta VFD25AMS23ANSAA
805 pages
Print Icon
To Next Page IconTo Next Page
To Next Page IconTo Next Page
To Previous Page IconTo Previous Page
To Previous Page IconTo Previous Page
Loading...
Chapter 7 Optional AccessoriesMS300
96
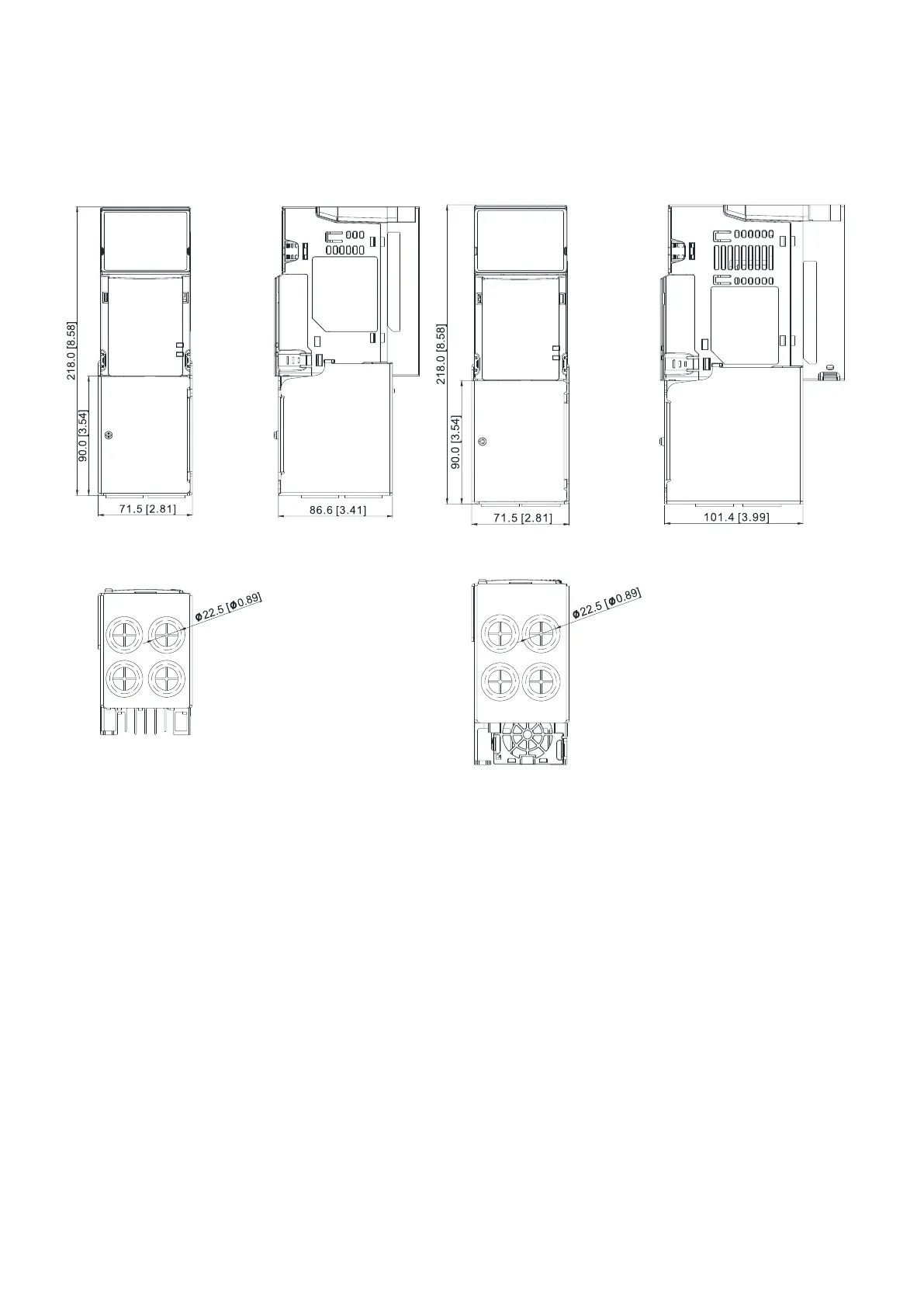
7-9 NEMA 1 / UL Type 1 Kit
Conduit boxes installation
Frame A (A1, A2)
Conduit box model: MKM-CBA0
Frame A (A3–A5)
Conduit box model: MKM-CBA
Unit: mm (inch)
Unit: mm (inch)
Figure 7-49
Figure 7-50

Table of Contents

Other manuals for Delta VFD25AMS23ANSAA

Related product manuals