EasyManua.ls Logo

Delta VFD4A2MS43ANSAA - Frame C

Delta VFD4A2MS43ANSAA
805 pages
Print Icon
To Next Page IconTo Next Page
To Next Page IconTo Next Page
To Previous Page IconTo Previous Page
To Previous Page IconTo Previous Page
Loading...
Chapter 2 DimensionsMS300
12
2-3 Frame C
C1: VFD4A8MS11ANSAA; VFD4A8MS11ENSAA; VFD7A5MS21ANSAA; VFD7A5MS21ENSAA;
VFD11AMS21ANSAA; VFD11AMS21ENSAA; VFD11AMS23ANSAA; VFD11AMS23ENSAA;
VFD17AMS23ANSAA; VFD17AMS23ENSAA; VFD5A5MS43ANSAA; VFD5A5MS43ENSAA;
VFD7A3MS43ANSAA; VFD7A3MS43ENSAA; VFD9A0MS43ANSAA; VFD9A0MS43ENSAA;
VFD4A2MS53ANSAA; VFD6A6MS53ANSAA
C2: VFD7A5MS21AFSAA; VFD11AMS21AFSAA; VFD5A5MS43AFSAA; VFD7A3MS43AFSAA;
VFD9A0MS43AFSAA
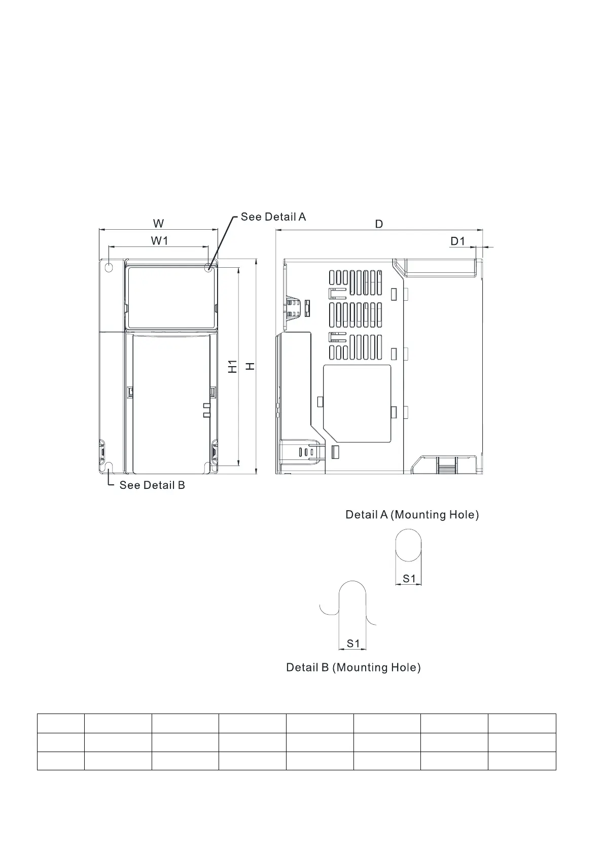
Figure 2-3
Unit: mm (inch)
Frame
W
H
D
W1
H1
D1
S1
C1
87.0 (3.43)
157.0 (6.18)
152.0 (5.98)
73.0 (2.87)
144.5 (5.69)
5.0 (0.20)
5.5 (0.22)
C2
87.0 (3.43)
157.0 (6.18)
179.0 (7.05)
73.0 (2.87)
144.5 (5.69)
5.0 (0.20)
5.5 (0.22)
Table 2-3

Table of Contents

Related product manuals