EasyManua.ls Logo

Delta VFD4A2MS43ANSAA - Page 97

Delta VFD4A2MS43ANSAA
805 pages
Print Icon
To Next Page IconTo Next Page
To Next Page IconTo Next Page
To Previous Page IconTo Previous Page
To Previous Page IconTo Previous Page
Loading...
Chapter 7 Optional AccessoriesMS300
88
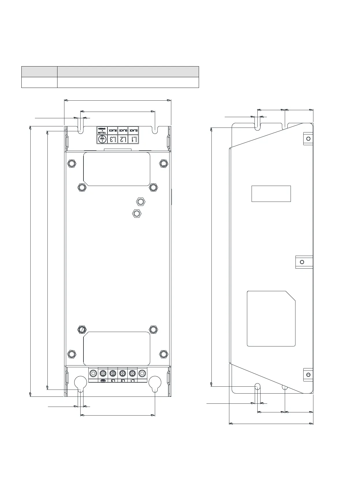
EMF27AM21B; EMF24AM23B
EMF33AM23B; EMF12AM43B
EMF23AM43B; EMF6A0M63B;
EMF16AM63B
Screw
Torque
M5 * 4
16–20 kg-cm / (13.9–17.3 lb-in.) / (1.56–1.96 Nm)
Table 7-48
Unit: mm (inch)
Figure 7-28
5.5 [0.22]
263.0 [10.35]
5.5 [0.22]
263.0 [10.35]
29.1 [1.14]
28.0 [1.10]
5.5 [0.22]
86.0 [3.39]
28.0 [1.10]
109.0 [4.29]
76.0 [2.99]
29.1 [1.14]
5.5 [0.22]
275.0 [10.83]
76.0 [2.99]

Table of Contents

Related product manuals