EasyManua.ls Logo

Delta VFD550CP43S-00

Delta VFD550CP43S-00
868 pages
To Next Page IconTo Next Page
To Next Page IconTo Next Page
To Previous Page IconTo Previous Page
To Previous Page IconTo Previous Page
Loading...
Chapter 7 Optional AccessoriesCP2000
7-111
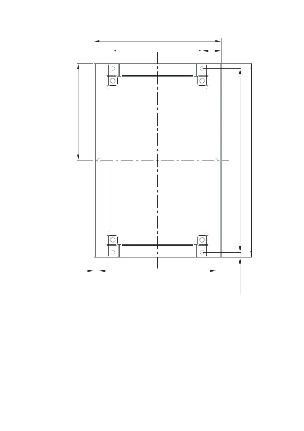
9.5 [0.37]
246.8[9.72]
369.0[14.53]
173.0 [6.81]
184.5[7.26]
350.0 [13.78]
36.9 [1.45]
10.4 [0.41]
226.0[8.90]

Table of Contents

Related product manuals