EasyManua.ls Logo

Den-Sin H-110-200E - Wiring Diagrams

Den-Sin H-110-200E
38 pages
Print Icon
To Next Page IconTo Next Page
To Next Page IconTo Next Page
To Previous Page IconTo Previous Page
To Previous Page IconTo Previous Page
Loading...
4. Spare Part List
H-110-200E V00 Page 32
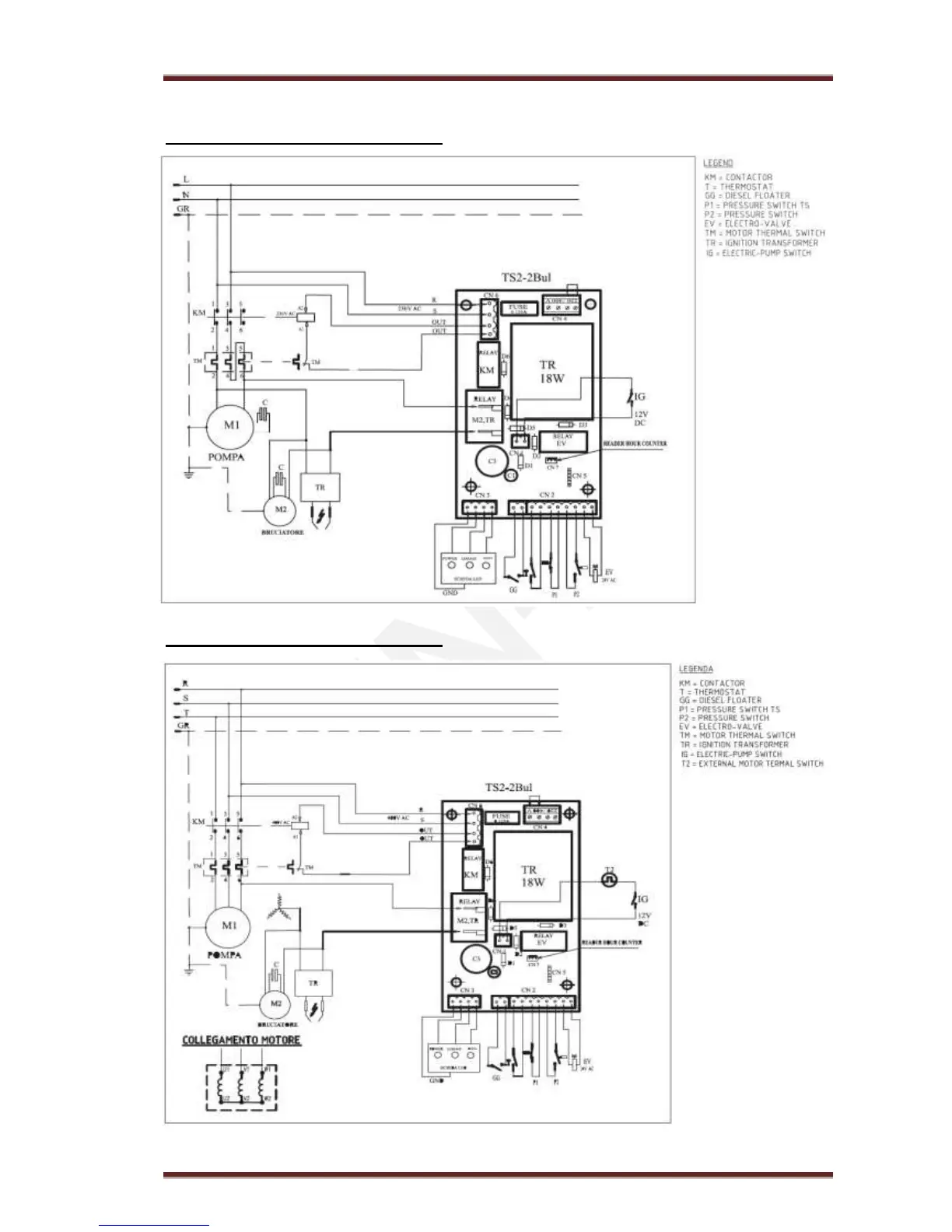
Wiring diagrams
H-110E 220~230V 50/60Hz Standard
H-200E 380~440V 50/60Hz Standard

Related product manuals