EasyManua.ls Logo

Denyo DCA-6LSX - Page 54

Denyo DCA-6LSX
64 pages
Print Icon
To Next Page IconTo Next Page
To Next Page IconTo Next Page
To Previous Page IconTo Previous Page
To Previous Page IconTo Previous Page
Loading...
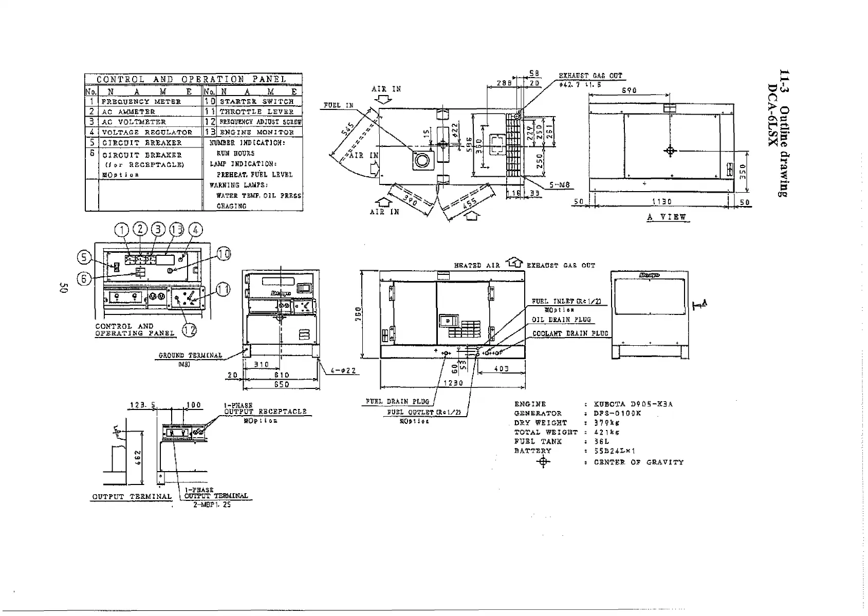
CONTROL AND OPERATION PANEL
No.
N A M E No.
NAME
1
FREQUENCY METER
1 0
STARTER SWITCH
2
AC AMMETER
1 1
THROTTLE LEVER
В
AC VOLTMETER
12
m oiracv ADJUST SC1OT
4VOLTAGE REGULATOR
1 ВENGINE MONITOR
5
CIRC UIT SEEAKER HIRISER INDICATION:
RUM HOURS
i INDICATION:
PREHEAT, FUEL LHVEL
lRNIHG LAMPS:
WATER TEMP, OIL PRESS
CHAGIMG
8
CIRC UIT BREAKER
(lor RECEPTACLE)
£!0j> t i m
tl
VI
EXHAUST GAS OUT
AIK IN
О
AIR IN
On
О
ENGINE
GENERATOR
DRY WEIGHT
TOTAL WEIGHT
FUEL TANK
BATTERY
' ф
: KUBOTA D9 0 S- К З A
j D F S-01 00K
37ns
42 U s
36L
SSB24L*1
CENTER o f g r a v i t y
2-MOP 1. 25
11-3 Outline drawing
DCA-6LSX

Related product manuals