EasyManua.ls Logo

Dexter Laundry SWAY CONTROL - Wire Connections to Trailer Plug and System Overview

Dexter Laundry SWAY CONTROL
30 pages
Print Icon
To Next Page IconTo Next Page
To Next Page IconTo Next Page
To Previous Page IconTo Previous Page
To Previous Page IconTo Previous Page
Loading...
-12-
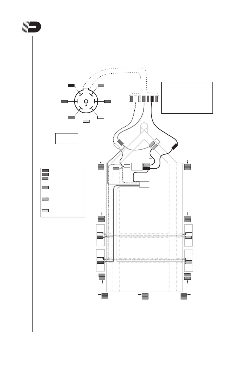
Wire Connections to Trailer Plug
and System Overview
YELLOW
Back-up
12 gauge
BLUE
Trlr. Brake Sig.
12 gauge
BROWN
Right Turn - Stop
12 gauge
WHITE
Ground
10 gauge
RED
Left Turn - Stop
12 gauge
BLACK
+12 Volts
10 gauge
GREEN
Running Lights
12 gauge
Full Size +12V
Trailer Battery
Break-Away
Switch
-
+
Frame
Ground
Running
Lights
Running
Lights
Running
Lights
Running
Lights
Running
Lights
Running
Lights
Running
Lights
Left Turn -
Stop Light
Right Turn -
Stop Light
Left Front
Electric Brake
Left Rear
Electric Brake
Right Rear
Electric Brake
Right Front
Electric Brake
Wiring Diagram
Bumper Pull Trailer
Electric Drum Brakes
with Dexter Sway Control
Full Size +12V
Trailer Battery
= FRAME GROUND
(wires not shown)
= BREAKAWAY SWITCH
= TRAILER LIGHTS
(wires not shown)
= BACK-UP LIGHTS
(not used)
Dexter
Sway Control
The DSC mounts on
the center line of the trailer, 5 to 10 feet
back from the trailer hitch ball on a
VERTICAL frame surface.
Trailer
Connector
Red
White
Yellow
Blue
Brown
Black
Green
White
Blue
Black
Blue
Green
Green
+ Battery
White
Purple
Green
Green
White
Pink
White
Pink
Pink
Purple Pink
Purple Pink
Green
Green
Red Green Brown
Figure 8
Dexter Sway Control Wiring