EasyManua.ls Logo

Dimplex LAW 6IMR - 5 Aufstellung; Inneneinheit; Außeneinheit

Dimplex LAW 6IMR
Print Icon
To Next Page IconTo Next Page
To Next Page IconTo Next Page
To Previous Page IconTo Previous Page
To Previous Page IconTo Previous Page
Loading...
DE-4 452162.66.04 · FD 9606 www.dimplex.de
Deutsch
LAW 6IMR - LAW 14ITR
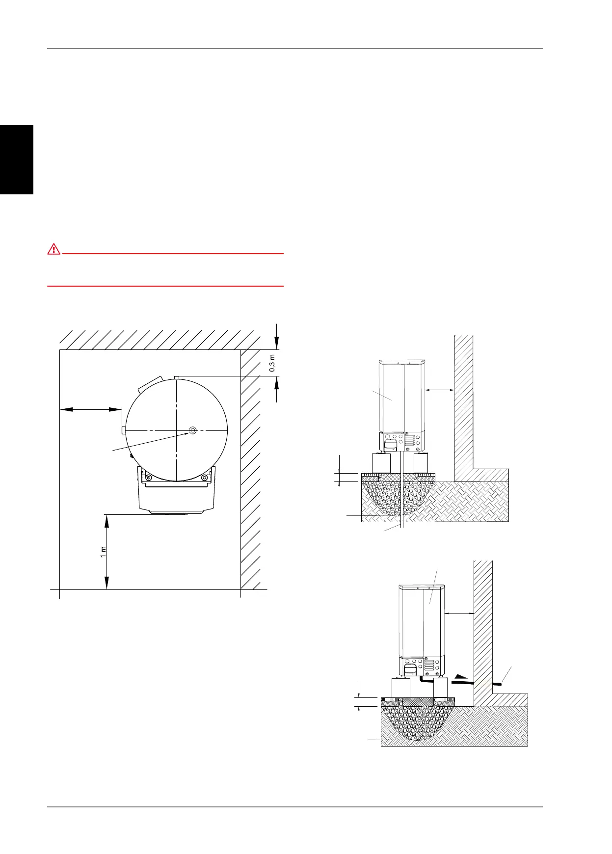
5 Aufstellung
5.1 Inneneinheit
Das Gerät ist grundsätzlich in Innenräumen auf einer ebenen,
glatten und waagerechten Fläche aufzustellen. Die Inneneinheit
muss so aufgestellt sein, dass Wartungsarbeiten von der Be-
dienseite problemlos durchgeführt werden können. Dies ist ge-
währleistet, wenn ein Abstand von 1 m an der Frontseite einge-
halten wird. Bei der erforderlichen Höhe des Aufstellraumes
muss der Platzbedarf (ca. 30 cm siehe Maßbild) für den Wechsel
der Schutzanode berücksichtigt werden. Der Einbau muss in
einem frostsicheren Raum und über kurze Leitungswege erfol-
gen.
ACHTUNG!
Im unbefüllten Zustand (Pufferspeicher und Warmwasserspeicher ohne
Wasser) neigt das Gerät zm Umkippen in Richtung der hydraulischen
Montagebaugruppe. Nicht an die Geräterückseite lehnen!
Die Aufstellung und Installation muss von einer zugelassenen
Fachfirma erfolgen.
Abb. 5.1: Abstände Inneneinheit
Bei Installation der Inneneinheit in einem Obergeschoss ist die
Tragfähigkeit der Decke zu prüfen und aus akustischen Gründen
die Schwingungsentkoppelung sehr sorgfältig zu planen. Eine
Aufstellung auf einer Holzdecke ist abzulehnen.
5.2 Außeneinheit
Es wird empfohlen, die Außeneinheit wandnah auf einem
vom Gebäude getrennten Fundament zu montieren mit
einem Abstand von mindestens 0,3 m an der Ansaugseite
(Abb. 5.2 + Abb. 5.3).
Falls eine Überdachung gegen direkte Sonneneinstrahlung,
Regen oder Schnee angebracht wird, darf der Wärmeaus-
tausch des Gerätes nicht behindert werden.
Bei freier Aufstellung ist das Fundament auf der Ansaug-
seite bündig mit dem Geräte abzuschließen. Dies vermei-
det, dass sich Schnee zwischen Fundament und Verdamp-
fer aufbaut.
Die angegebenen Mindestabstände (Abb. 5.2) sind einzu-
halten.
Der Montageort ist so zu wählen, dass Personen möglichst
nicht durch warme/kalte Luftbewegungen bzw. Schallemis-
sionen belästigt werden.
Die Kondensatwanne bietet verschiedene Möglichkeiten für
den Kondensatablauf. In wärmeren Regionen kann das
Kondensat frei aus dem Gerät ablaufen. In Regionen mit
längeren Frostperioden ist ein kontrollierter Kondensatab-
lauf sicherzustellen.
Abb. 5.2
Abb. 5.3
DBBQQFOWN
6FKXW]DQRGH
3URWHFWLRQDQRGH
$QRGHDQWLFRUURVLRQ
P
P
:lUPHSXPSH
.RQGHQVDWDEODXI
)URVWJUHQ]H
0,3 m
0,2 m
> 5%
Wärmepumpe
Kondensatabla
Frostgrenze

Table of Contents

Related product manuals