EasyManua.ls Logo

Dimplex LAW 6IMR - Page 67

Dimplex LAW 6IMR
Print Icon
To Next Page IconTo Next Page
To Next Page IconTo Next Page
To Previous Page IconTo Previous Page
To Previous Page IconTo Previous Page
Loading...
www.dimplex.de 452162.66.04 · FD 9606 A-III
Anhang · Appendix · Annexes
LAW 6IMR - LAW 14ITR
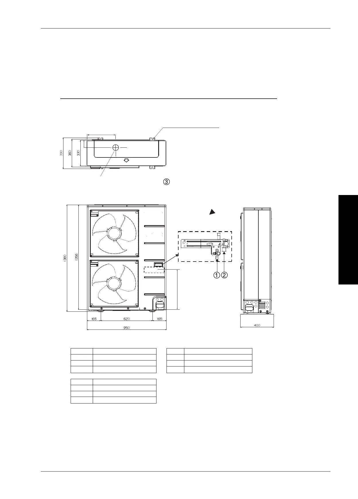
1.2 Maßbild Außengerät / Dimension drawing outdoor unit /
Schéma coté unité extérieure LAW 14IMR / LAW 14ITR
Allgemeine Informationen
General information
Informations générales
Außengerät (extern)
Outdoor unit (external)
Unité extérieure (externe)
490
4 Öffnungen für Dübelschrauben
Four openings for dowel screws
4 orifices pour vis de cheville
*
Beschreibung / Description / Description
Nr. Name
1
2
3
Wartungsventil Flüssigkeitsseite
Wartungsventil Gasseite
Abluftgitter
Einheit / Unit / Unité: mm
Heizleistung des
Gerätes:
Heat output of the device:
Puissance calorifique de l'appareil :
14 kW
No Name
1
2
3
Maintenance interval liquid side
Maintenance interval gas side
Exhaust air grid
1
2
3
Nom
Vanne de maintenance côté liquide
Vanne de maintenance côté gaz
Grille d’évacuation
Kondensatablauf / Condensate drain /
Écoulement des condensats
415
50

Table of Contents

Related product manuals