EasyManua.ls Logo

DLS Reference series - Required Tools and Materials; Wire Routing and Connections; Professional Tip: Power Cable Selection

DLS Reference series
12 pages
Print Icon
To Next Page IconTo Next Page
To Next Page IconTo Next Page
To Previous Page IconTo Previous Page
To Previous Page IconTo Previous Page
Loading...
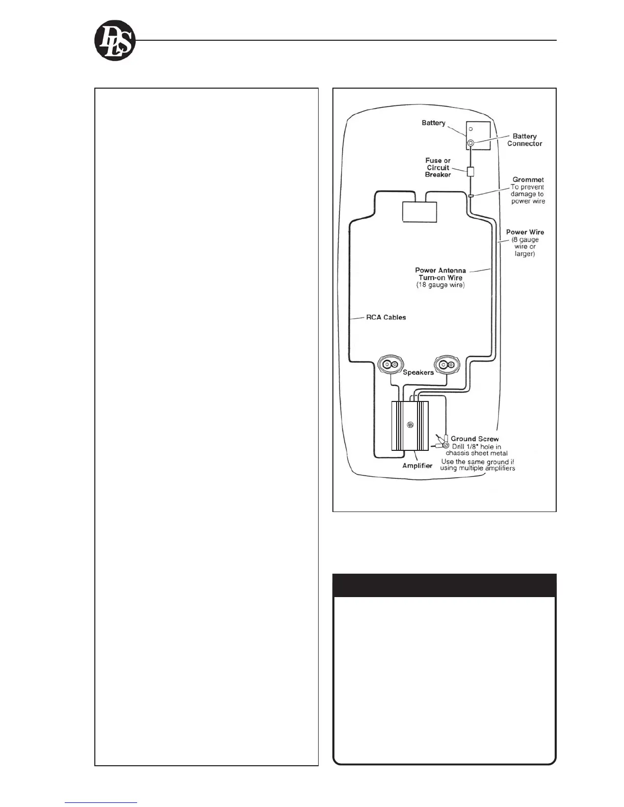
Tools and material needed
Tools:
Flat and Phillips screwdrivers
Wire cutter
Wire stripper
Electric drill with drills
Crimping tool
Digital multimeter or test lamp
Wire brush, scraper or a piece
of an abrasive sheet to remove
paint for a good ground connection
Grease to protect the ground
connection from oxidation
Material:
Speaker wire: minimum
12 AWG = 4 mm
2
for subwoofers
13 – 16 AWG = 1,5-2,5 mm
2
for other
speakers
Sheet metal screws for mounting the
amplifier to the amplifier board and the
amplifier board to the car + some extra
for fuse holder, amplifier ground etc.
Electrical insulation tape
½ inch thick plywood or particle board for
the amplifier to be mounted upon.
Amplifier installation kit:
If available,buy an amplifier installation kit. It
contains normally all you need. This is what you
have to buy if you buy the items separately
20- 25 feet = 6- 7.5 meter power cable,
minimum AWG 5 = 16 mm
2
or heavier
1 pc of fuseholder to install close to the
car battery + fuse 50 Ampere.
20 feet of AWG 15 = 1,5 mm
2
wire for
remote turn on / off cable from radio.
RCA-cable for input from radio.
- 20 feet or 5 meter for trunk installations
-12 feet or 2 – 3 meter for under seat
installations
Two ring crimp terminals –one
for connection to the battery plus and one
for the amplifier ground connection.
Four to eight splicers to connect speaker
cables to high level input cable, if high level
input is used.
Wire ties
Insulating grommet or insulating tube
Stereo
head unit
3
Professional Tip:
If amplifier installation kits are available with diffe-
rent size of power cable, chose the most heavy
power cable to improve sound quality and to allow
more amplifiers to be installed now or later.
If possible use AWG 4 = PL 21 mm
2
cable for best
performance.
These are the minimum sizes we recommend for
the different models:
RA25 10 mm
2
(7AWG)
RA30 21 mm
2
(4AWG)
This is for cable lengths up to 5 meters.
The ground cable must have the same size.
RA25 & RA30
Routing wires

Related product manuals