EasyManua.ls Logo

Dometic B1600 - B2200 Wiring Diagram

Dometic B1600
24 pages
Print Icon
To Next Page IconTo Next Page
To Next Page IconTo Next Page
To Previous Page IconTo Previous Page
To Previous Page IconTo Previous Page
Loading...
B1600 - B2200
21
GB
LED
BOARD
LED
BOARD
LED
BOARD
LED
BOARD
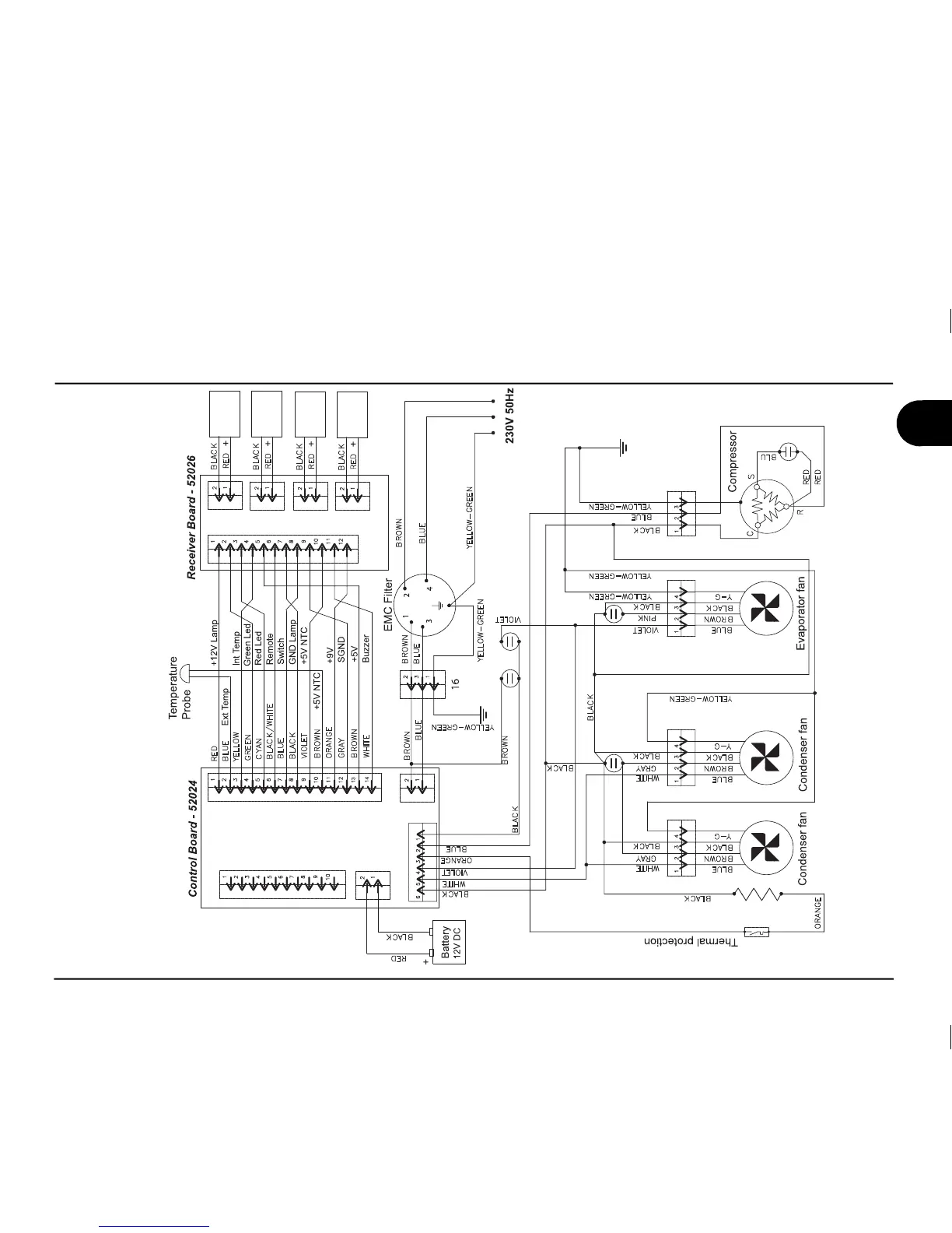
B2200 wiring diagram

Related product manuals