EasyManua.ls Logo

Dometic FJX3473 - ADB Component Dimensions

Dometic FJX3473
28 pages
Print Icon
To Next Page IconTo Next Page
To Next Page IconTo Next Page
To Previous Page IconTo Previous Page
To Previous Page IconTo Previous Page
Loading...
8
EN
General Information Value Air Distribution Box (ADB), Mechanical
3.4.7 Penguin II
q
r
o
u
i
u
t
y
w
e
8 Penguin II (640312C, 640315C, 640316C)
q
10.4 in. (264 mm)
u
4.0 in. (102 mm)
Clearance
w
40.5 in. (1029 mm)
e
29.0 in. (737 mm)
i
12.0 in. (305 mm)
Clearance
r
Center Line of Unit
t
Roof Opening
o
Air Flow Clearance
Area (Shaded)
y
Front of Unit
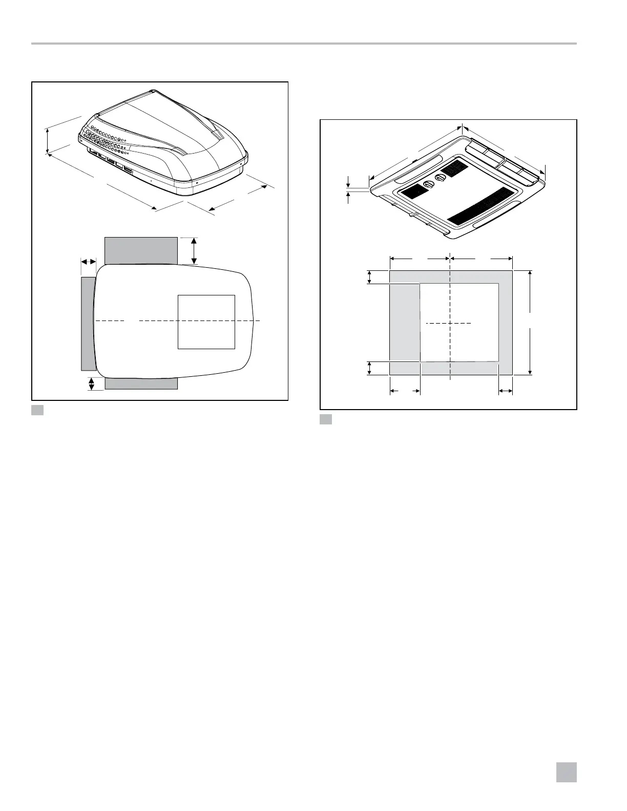
3.5 ADB Component Dimensions
This section provides the internal dimensions of the ADB
component.
q
t
y
w
r
e
r
u
i
i
o
a
u
9 Dimension Measurements
q
Front of Unit
y
Center Line of Unit
w
2.3 in. (59 mm)
u
11.6 in. (295 mm)
e
23.0 in. (583 mm)
i
3.4 in. (86 mm)
r
20.4 in. (518 mm)
o
6.0 in. (152 mm)
t
Roof Opening
a
3.0 in. (76 mm)

Related product manuals