EasyManua.ls Logo

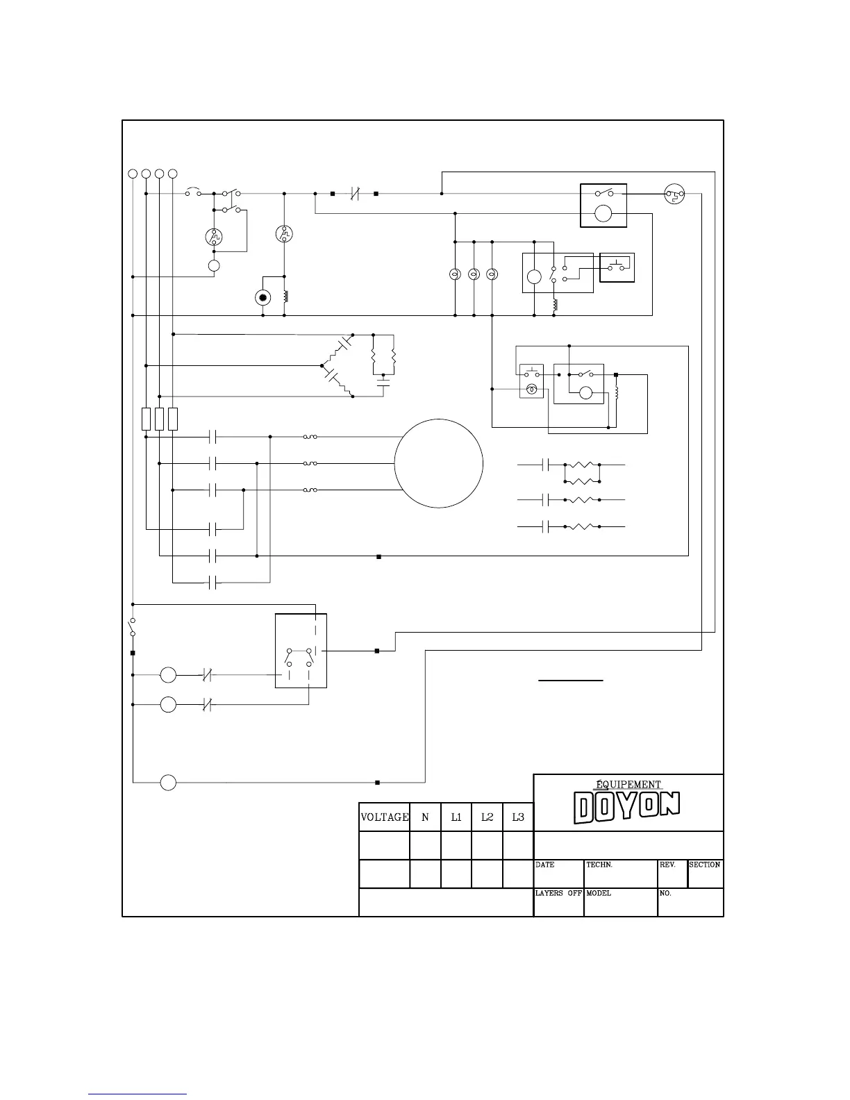
Doyon JA12SL - JA6 SLSC 3-PHASE 60 Hz SCHEMATIC

Doyon JA12SL
82 pages
Print Icon
To Next Page IconTo Next Page
To Next Page IconTo Next Page
To Previous Page IconTo Previous Page
To Previous Page IconTo Previous Page
Loading...
G7
5 A.
(ALARM)
BUZZER
P.L.
ST
N1
BUZZER
8
10
7
9
43
1
2
AR
AV
A2A1
A2A1
AR
AV
ST
C1
C1
A2A1
1
C1
C1
C1
C1
BLK
RED
BLUE
4
3
2
1
BLUE
BLK
RED
4
3
2
BLUE
BLK
RED
OL1
L3
F3
L2L1N
OL1
95
BULB
F2F1
AV
AR
L1
COOKING
SWITCH
COOKING TIMER
H5CX (MODE A−1)
M
1
4
6
8
7
2
ELECTRONIC
TIMER
DOOR
SWITCH
OVEN
SWITCH
COOLING
FAN
HIGH
LIMIT
110°F
HIGH
LIMIT
140°F
96
THERMOSTAT
HIGH
LIMIT
500°F
2.5 KW
EACH
ELEMENT
3/4 HP
MOTOR
T1
T2L2
T3L3
L1 T1
T2L2
L3 T3
T1L1
L2 T2
T3L3
VA
VA
MODE E
OVEN
VALVE
SWITCH
STEAM
TV
B1
18
A2
A1
15
VL
STEAM TIMER
H3DE
120 / 240 1.5A 23A 28A 28A
JA6SLSC 3 PHASES 60 Hz
25/05/04 M. FAUCHER 4
2, 4 & 5
STANDARD
JA6SLS_3
1 / 1
120 / 208 1.5A 24A 33A 33A
&TOTAL POWER: Hz60 10.7 Kw
WARNING
FOR SUPPLY SYSTEMS CONSISTING OF A DELTA
SECONDARY TRANSFORMER, MAKE SURE THAT THE
PHASE FEEDER WITH THE HIGHEST VOLTAGE (HIGH LEG)
IS CONNECTED TO L3 IN THE SUPPLY BOX OF THIS OVEN
(120 / 240V. 3 PH. SYSTEMS).

Related product manuals