EasyManua.ls Logo

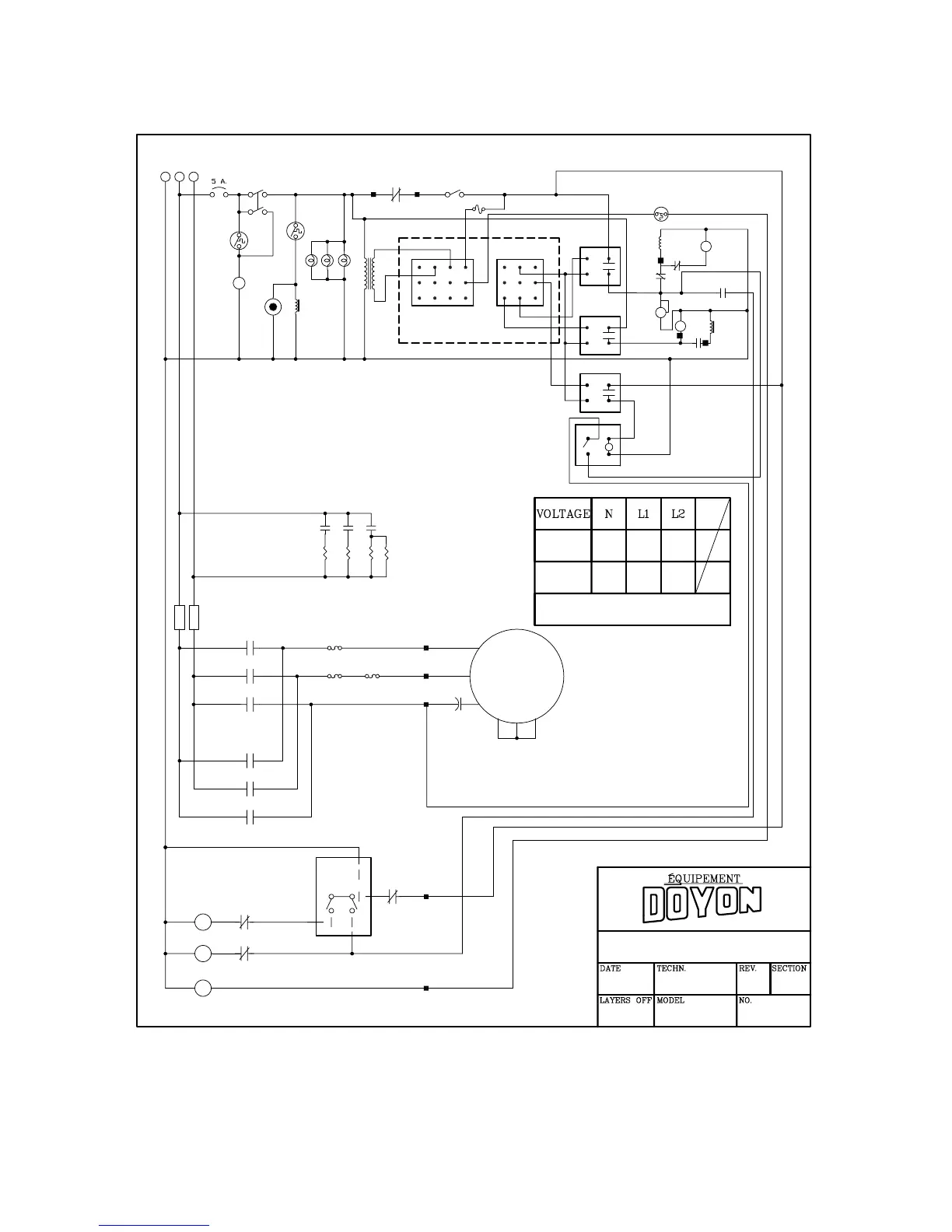
Doyon JA12SL - JA6 SLSC 1-PHASE 60 Hz WATLOW SCHEMATIC

Doyon JA12SL
82 pages
Print Icon
To Next Page IconTo Next Page
To Next Page IconTo Next Page
To Previous Page IconTo Previous Page
To Previous Page IconTo Previous Page
Loading...
G11
(ALARM)
140°
LIMIT
HIGH
BUZZER
110°
LIMIT
HIGH
P.L.
FAN
COOLING
SWITCH
OVEN
58
TV1
STEAM2
6
7
2
TV1
1
3
1
_
4
3
+
2
R2−4
1
5
R2
60 W
6 4
R3
6
2
T1
10
7
R3
8
1
T1
4
1 A
6 4
R2
8
7
R2
EVENT
PROGRAMABLE CONTROL
TEMPERATURE & TIMER
8
12
9
6
+
_
4
3
2
1
1
2
3
4
_
+
2
3
120/24V
VL
43
1
2
AR
AV
ST
A2A1
A2A1
AR
AV
ST
C1
C1
C
OL1
L2L1N
SWITCH
DOOR
OL1
95 96
BULB
F2F1
T2 T8
T3
AV
AR
T1
T4
T5
L3 T3
L2 T2
L1 T1
L3 T3
L2 T2
L1 T1
L1 T1
L2 T2
L3 T3
C1
C1
A2A1
SSR
3−32V DC
STEAM 1
SSR
3−32V DC
BUZZER
HIGH
LIMIT
OVEN
VALVE
BUZZER
BAKING
ALARM
TV1 = OMRON H3CRF
AUTO STEAM INJECTION TIMER
RED ARROW STEAM ON
GREEN ARROW STEAM OFF
T1 = OMRON H3CR MODE A 30 SEC.
T2 = DIGIT SELECT 10 SEC.
2.5KW
EACH
ELEMENT
ELECTRONIC
TIMER
3/4HP
MOTOR
120 / 240 2A 45A 44A
JA6SLSC 1 PHASE 60 Hz
31/05/04 M. FAUCHER 2
9
WATLOW
JA6SLS_W
1 / 1
120 / 208 2A 51A 49A
TOTAL POWER: 10.7 Kw 60 Hz

Related product manuals