EasyManua.ls Logo

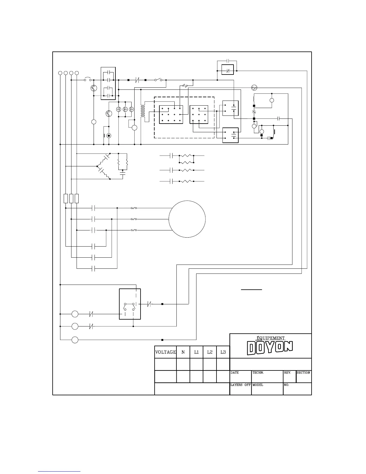
Doyon JA12SL - JA6 SLSC 3-PHASE 60 Hz WATLOW SCHEMATIC

Doyon JA12SL
82 pages
Print Icon
To Next Page IconTo Next Page
To Next Page IconTo Next Page
To Previous Page IconTo Previous Page
To Previous Page IconTo Previous Page
Loading...
G13
NO−A
NO−B
P.L.
NC−B
1 3
T2
DELAY
T2
6
10
2
NO−B
NO−A
ST
T1−1
L3
1
C1
C1
C1
BLK
RED
BLUE
4
3
2
1
BLUE
BLK
RED
4
3
2
BLUE
BLK
RED
OL1
F3
F2F1
AV
AR
L3 T3
L2 T2
L1 T1
L3 T3
L2 T2
L1 T1
L1 T1
L2 T2
L3 T3
R2−4
15
R2
60 W
6 4
R3
6
2
T1
10
7
R3
8
1
T1
4
1 A
6 4
R2
8
7
R2
EVENT
PROGRAMABLE CONTROL
TEMPERATURE & TIMER
8
12
9
6
+
_
4
3
2
1
1
2
3
4
_
+
2
3
120/24V
VL
FAN
43
1
2
AR
AV
ST
A2A1
A2A1
AR
AV
C1
L2L1N
SWITCH
DOOR
OL1
95 96
BULB
C1
C1
A2A1
ON / OFF / DELAY
SELECTOR SWITCH
ON / OFF / DELAY
SELECTOR SWITCH
SSR
3−32V DC
STEAM 1
SSR
3−32V DC
BUZZER
HIGH
LIMIT
OVEN
VALVE
BUZZER
BAKING
ALARM
5 A.
ELECTRONIC
TIMER
3/4HP
MOTOR
2.5KW
EACH
ELEMENT
HIGH
LIMIT
110°
HIGH
LIMIT
140°
T1 = OMRON H3CRF MODE−A 30 SEC.
T2 = OMRON H3CR MODE−A 5 MIN.
120 / 240 1.5A 23A 28A 28A
JA6SL 3 PHASES 60 Hz
31/05/04 M. FAUCHER 2
4 − 7 & 9
DELAY
JA6SL_3W
1 / 1
120 / 208 1.5A 24A 33A 33A
TOTAL POWER: 10.7 Kw 60 Hz
FOR SUPPLY SYSTEMS CONSISTING OF A DELTA
SECONDARY TRANSFORMER, MAKE SURE THAT
THE PHASE FEEDER WITH THE HIGHEST VOLTAGE
(HIGH LEG) IS CONNECTED TO L3 IN THE SUPPLY
BOX OF THIS OVEN (120 / 240V. 3 PH. SYSTEMS).
WARNING

Related product manuals