EasyManua.ls Logo

Dremel ScrollStation 1830 - Assembly and Mounting; Mounting to a Workbench; Mounting to Plywood Board

Dremel ScrollStation 1830
56 pages
Print Icon
To Next Page IconTo Next Page
To Next Page IconTo Next Page
To Previous Page IconTo Previous Page
To Previous Page IconTo Previous Page
Loading...
24"
11-7/8"
19-13/16"
7-7/8"
15"
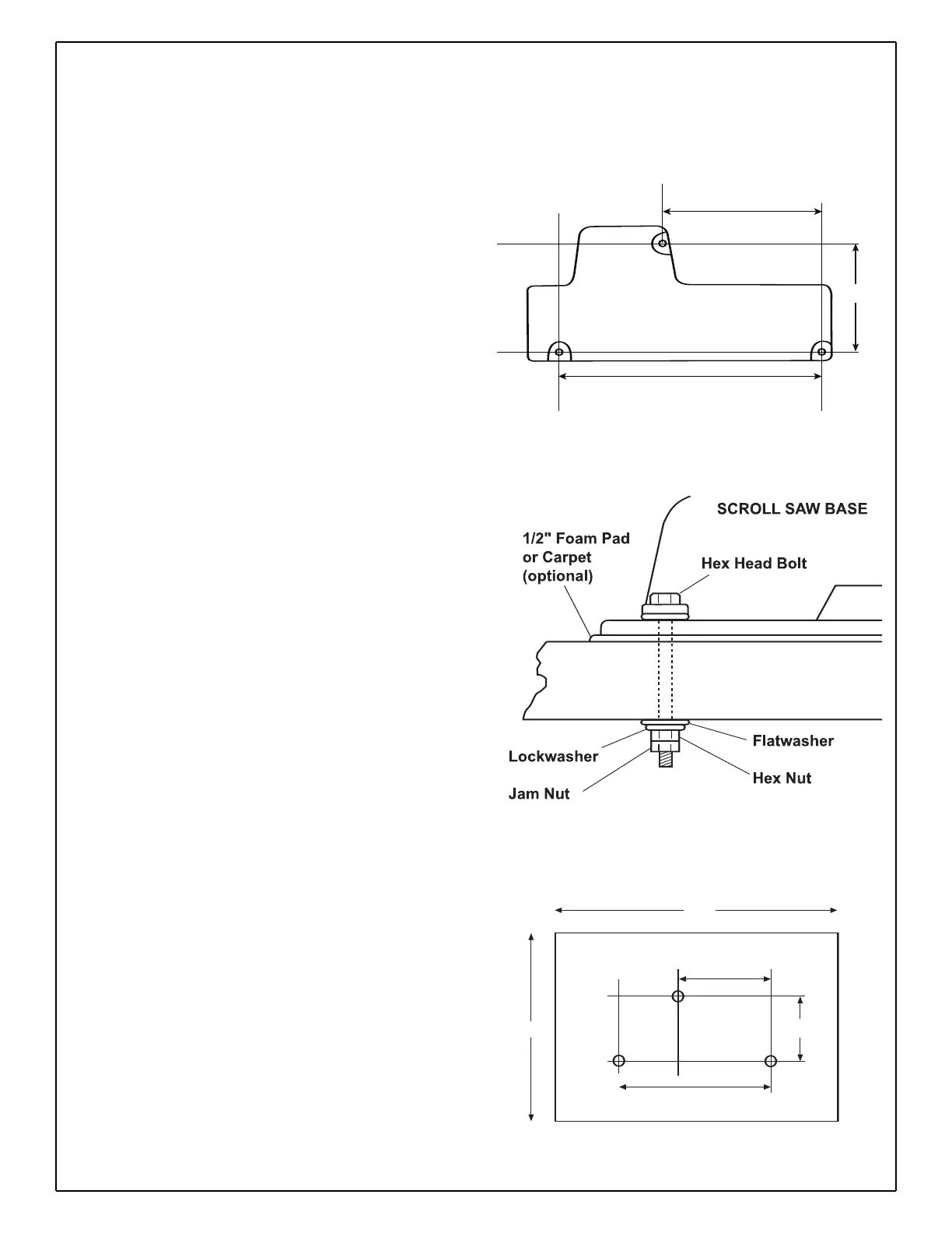
Figure 5. Plywood Mounting Template
10
Assembly
Mounting the ScrollStation
to a Bench
The ScrollStation should be fastened securely to a firm sup-
p
orting surface such as a stand or workbench, using the three
mounting holes.
N
OTE:
W
hen mounting this saw to a workbench, a solid
b
ench is preferable to a plywood bench where noise and
vibration will be more noticeable.
W
e recommend to reduce noise and vibration, that a soft
foam pad be placed between your ScrollStation and work-
bench (not included).
Quantity Description
1
Soft foam pad, such as carpet padding,
24”x12”x1/2”
When mounting the ScrollStation to a workbench, holes
should be drilled through the foam pad or carpet and mount-
ing surface of the workbench using the dimensions illustrated
in Figure 3.
Each of the three mounting holes should be bolted securely
using no less than 1/4" hex bolts, flat washers, lockwashers,
and nuts (not included). We recommend:
Quantity Description
4 Hex Head Bolts,
1/4"-20 x 1/4"-20 x Length Required
4 Flat Washers, 9/32" I.D.
4 Lockwasher, 9/32" I.D.
8 Hex Nuts, 1/4"-20
(Hardware not included)
Refer to Figures 3 and 4.
1.
Locate and mark where the ScrollStation is to be mounted.
2. Drill the three (3) 5/16" holes through the workbench.
3. Place the ScrollStation on the workbench aligning holes
in the base with the holes drilled in the workbench. Insert
all three (3) bolts and secure using washers, lockwash-
ers and nuts.
NOTE: Do NOT overtighten mounting bolts. If using recom-
mended foam pad, leave some cushion in the foam pad for
absorbing noise and vibration.
Mounting the ScrollStation
to Plywood
An alternative method of securing your ScrollStation is to fas-
ten the ScrollStation base to a mounting board 18" x 24". Any
good grade of plywood with a 3/4" minimum thickness is rec
-
ommended. Follow the instructions for
MOUNTING THE
SCROLLSTATION TO A BENCH
, substituting the 18" x 24"
board for the workbench and using 1/4"-20 flat head screws
for the hex head bolts (Figure 4). Screws must be mounted
from underneath the plywood with washers and nuts on top.
11-7/8"
19-13/16""
7
-7/8"
Figure 3. Bench Mounting Template
Figure 4. Table Mounting Hardware (not included)
NOTE: For proper stability, holes must be countersunk so
screw heads are flush with the bottom surface of the sup-
porting board.

Table of Contents

Related product manuals