EasyManua.ls Logo

Drolet Blackcomb - Page 32

Drolet Blackcomb
55 pages
Print Icon
To Next Page IconTo Next Page
To Next Page IconTo Next Page
To Previous Page IconTo Previous Page
To Previous Page IconTo Previous Page
Loading...
Blackcomb Installation and Operation Manual
32
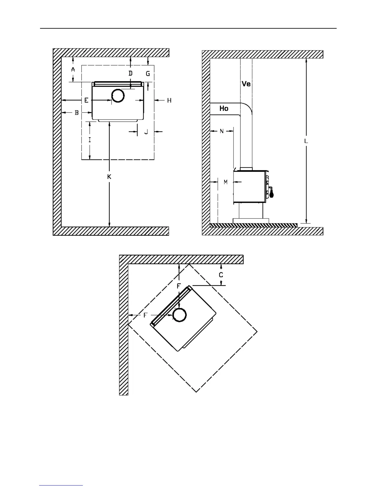
Clearances to combustible materials and floor protection

Table of Contents

Related product manuals