EasyManua.ls Logo

DROPSA VIP4 Tools - 11.2 VIP 3 Litres

Default Icon
17 pages
Print Icon
To Next Page IconTo Next Page
To Next Page IconTo Next Page
To Previous Page IconTo Previous Page
To Previous Page IconTo Previous Page
Loading...
14
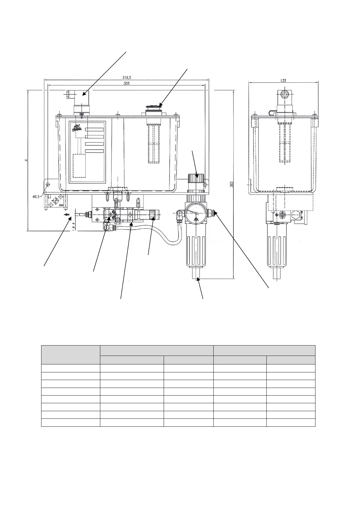
11.2 VIP 3 LITRES
The panel is installation ready for the timer kit (optional) P/N 3132572
Number of elements
A
Weights
(mm)
(in.)
(Kg.)
(lb)
1
365
14.4
3.6
7.9
2
393
15.5
4.1
9.0
3
421
16.6
4.6
10.1
4
449
17.7
5.1
11.2
5
477
18.8
5.6
12.3
6
505
19.9
6.1
13.4
7
533
21.0
6.6
14.5
8
561
22.1
7.1
15.6
Electrical level
Tappo di caricamento
Mixing air
regulator
Use
Bleed screw
Pump control
Flow rate
adjustment
screw
Condensed air bleed
screw
Mixing air inlet
PIPE
Filler Cap

Related product manuals