EasyManua.ls Logo

DROPSA VIP4 Tools - 11.3 VIP 3 Litres with Separate Controls; 12. Handling and Transport

Default Icon
17 pages
Print Icon
To Next Page IconTo Next Page
To Next Page IconTo Next Page
To Previous Page IconTo Previous Page
To Previous Page IconTo Previous Page
Loading...
15
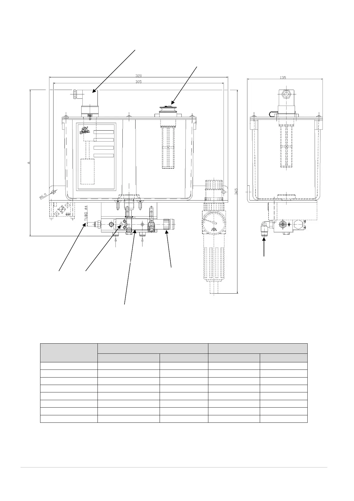
11.3 VIP 3 LITRES WITH SEPARATE CONTROLS
The panel is installation ready for the timer kit (optional) P/N 3132572 and the reducing filter (optional) P/N 20685.
Number of elements
A
Weights
(mm)
(in.)
(Kg.)
(lb)
1
362
14.25
3.4
7.5
2
390
15.35
3.9
8.6
3
418
16.46
4.4
9.7
4
446
17.56
4.9
10.8
5
474
18.66
5.4
11.9
6
502
19.76
5.9
13
7
530
20.87
6.4
14.1
8
558
21.97
6.9
15.2
12. HANDLING AND TRANSPORT
Tappo di caricamento
Electrical level
Use
Bleed screw
Pump control
Vite regolazione
portata
Inputs
AIR
INTAKE 4
AIR
INTAKE PUMP 4
Flow capacity
adjustment screw
Filler Cap

Related product manuals