EasyManua.ls Logo

DSE DSE9255 - Dse9255 24 V 5 A

Default Icon
69 pages
Print Icon
To Next Page IconTo Next Page
To Next Page IconTo Next Page
To Previous Page IconTo Previous Page
To Previous Page IconTo Previous Page
Loading...
Specifications
37
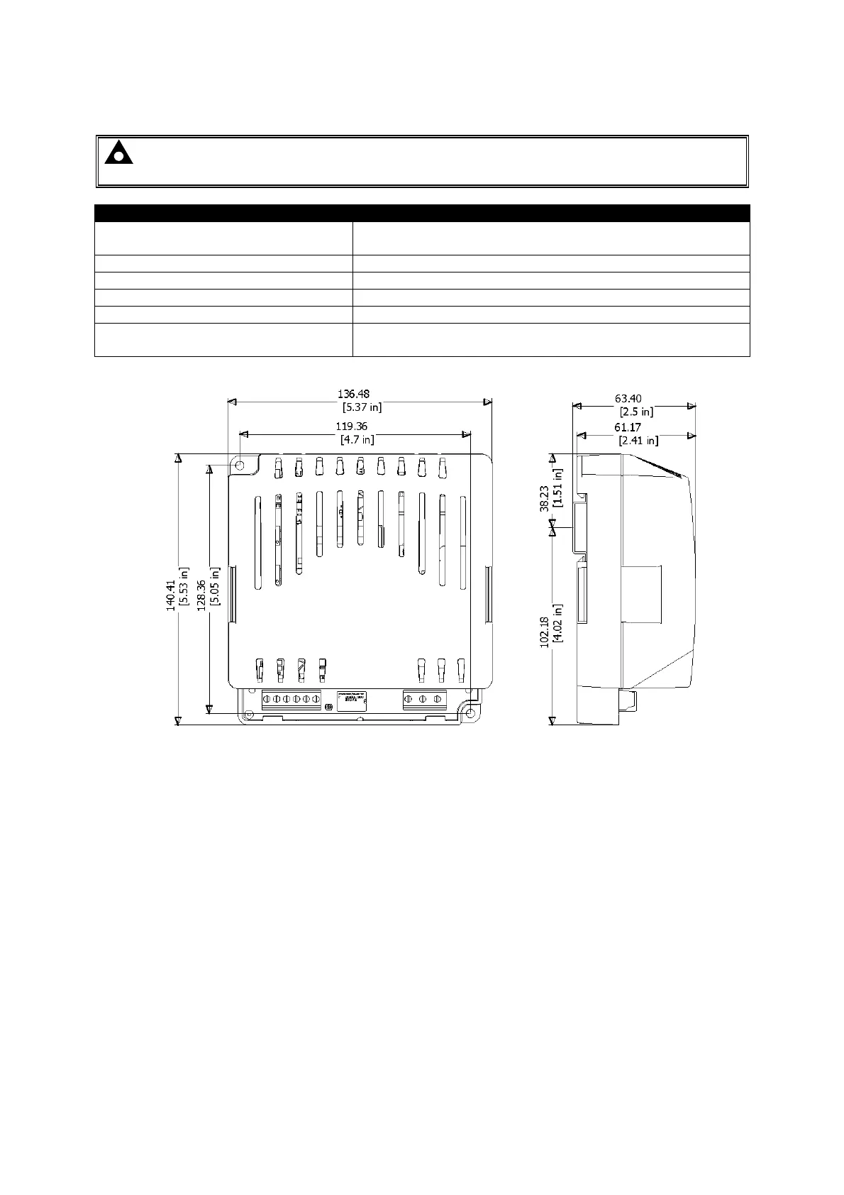
3.6.9 DSE9255 24V 5A
NOTE: This battery charger is designed to be mounted with the base to a vertical surface
with the terminal strips at the bottom.
Parameter
Comment
Overall size 136.48mm x 140.41mm x 63.40mm
(5.37” x 5.53” x 2.5”)
Weight 0.5kg
Mounting type DIN rail or chassis mounting
Din rail type EN 50022 35mm type only
Mounting holes Suitable for M4
Mounting hole centres 119.36mm x 128.36mm
(4.7” x 5.05”)
Dimensions in mm unless stated

Table of Contents

Related product manuals