EasyManua.ls Logo

Dunkirk 3EW.65 - Page 30

Dunkirk 3EW.65
32 pages
Print Icon
To Next Page IconTo Next Page
To Next Page IconTo Next Page
To Previous Page IconTo Previous Page
To Previous Page IconTo Previous Page
Loading...
30
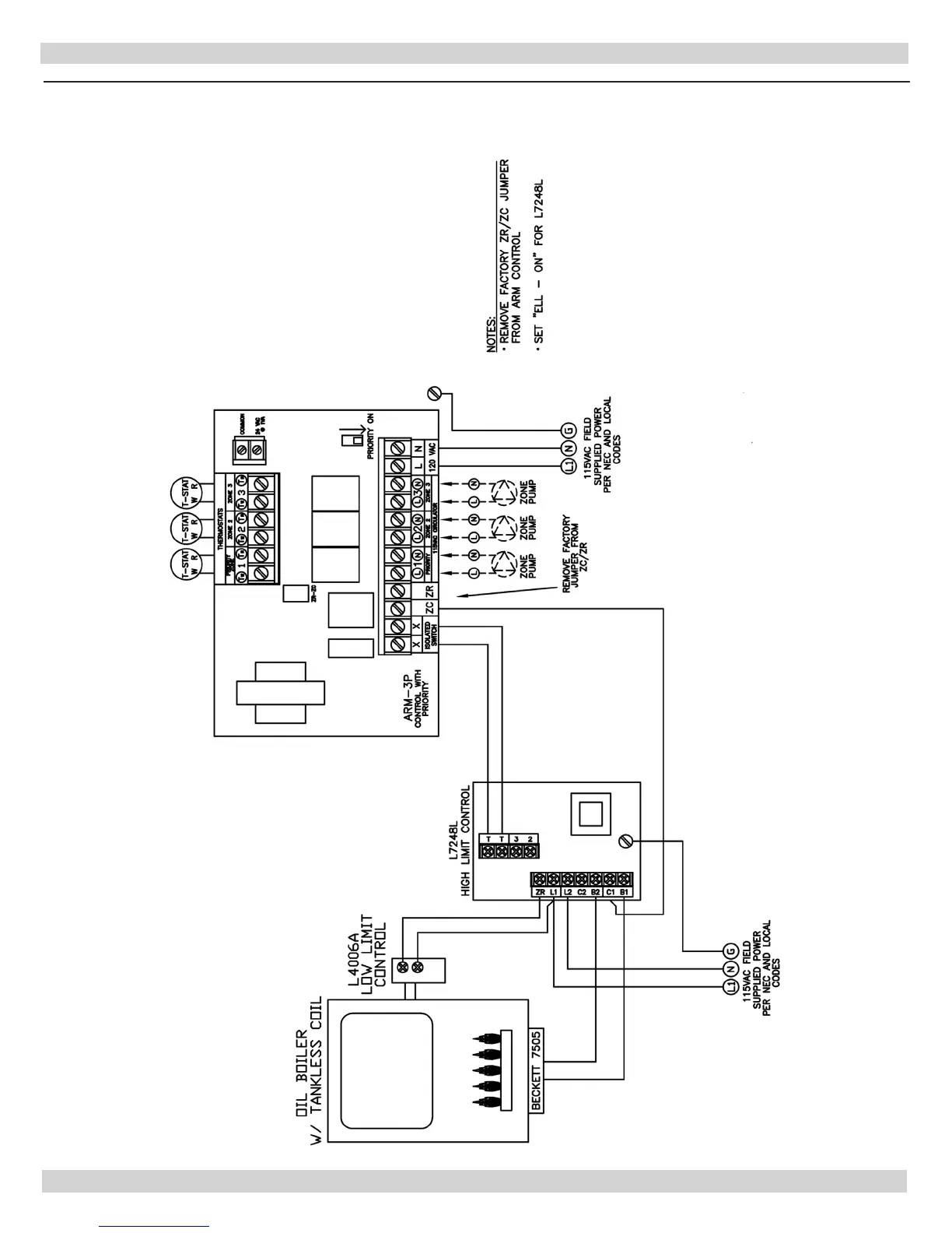
Figure 18 -
Honeywell L7248L Control Wiring with Zone Pumps and Argo ARM Switching Relay
(With Tankless Coil Shown)
ELECTRICAL WIRING