EasyManua.ls Logo

Dunkirk PVSB-4D - Installation - System Piping

Dunkirk PVSB-4D
36 pages
Print Icon
To Next Page IconTo Next Page
To Next Page IconTo Next Page
To Previous Page IconTo Previous Page
To Previous Page IconTo Previous Page
Loading...
7
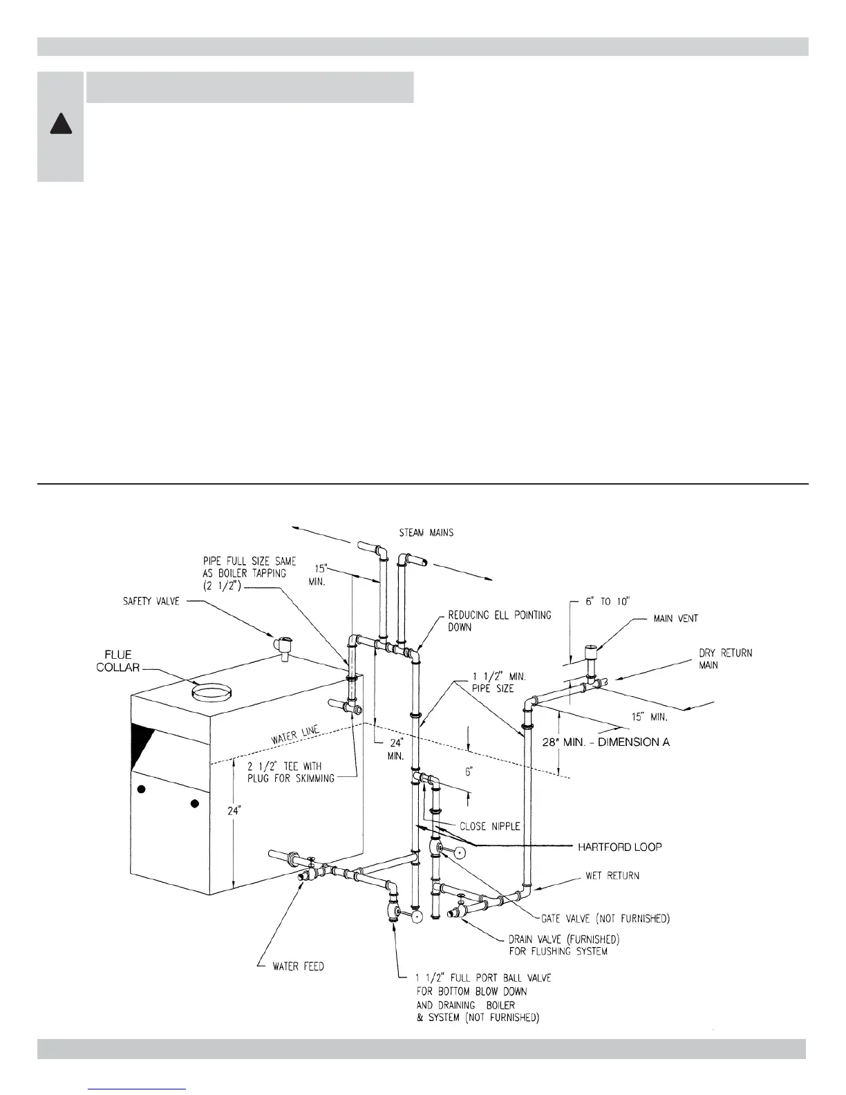
INSTALLATION - SYSTEM PIPING
Near boiler piping, that is the piping around boiler, must be
considered as part of boiler for proper water level control,
and to produce dry steam. Correct near boiler piping is
crucial to the proper operation of the boiler and the heating
system. Follow these recommendations carefully.
Place boiler in selected location, as near chimney as
1.
possible.
Install safety valve, using furnished 3/4” coupling, into
2.
3/4” pipe nipple on top of boiler.
Install safety valve with spindle in vertical position.
Do no install shutoff valve between boiler and safety
valve.
Install discharge piping from safety valve. See Figure
2.
Use 3/4" or larger pipe.
Use pipe suitable for temperatures of 375°F (191°C)
or greater.
Individual boiler discharge piping shall be
independent of other discharge piping.
Size and arrange discharge piping to avoid reducing
safety valve relieving capacity below minimum relief
valve capacity stated on rating plate.
Run pipe as short and straight as possible to location
protecting user from scalding and properly drain
piping.
Install union, if used, close to safety valve outlet.
Install elbow(s), if used, close to safety valve outlet
and downstream of union (if used).
Terminate pipe with plain end (not threaded).
This boiler is equipped with two 2-1/2” supply
3.
connections and two 2-1/2” return connections, one
each on both the left and right sides of the boiler.
Unused connections must be plugged with the 2-1/2”
plugs (furnished).
Figure 2 - Recommended Near Boiler Piping Using One Supply Tapping
!
WARNING
Burn and scald hazard. Safety valve could
discharge steam or hot water during
operation. Install discharge piping per these
instructions

Related product manuals