EasyManua.ls Logo

Dunkirk XEB-2 - Page 20

Dunkirk XEB-2
32 pages
Print Icon
To Next Page IconTo Next Page
To Next Page IconTo Next Page
To Previous Page IconTo Previous Page
To Previous Page IconTo Previous Page
Loading...
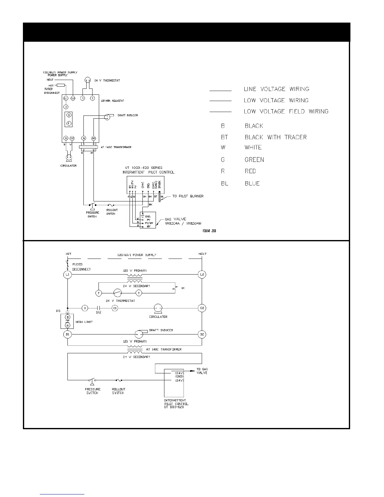
INTERMITTENT IGNITION
IF ANY OF THE ORIGINAL WIRE AS SUPPLIED WITH THIS APPLIANCE MUST BE REPLACED,
IT MUST BE REPLACED WITH TYPE 105° C THERMOPLASTIC WIRE OR ITS EQUIVALENT.
NOTE: The circulator harness is factory wired to the aquastat. This harness needs to be
connected to the circulator in the field.
FIG. 12 - WIRING DIAGRAMS FOR HOT WATER BOILERS
19

Other manuals for Dunkirk XEB-2

Related product manuals