EasyManua.ls Logo

Durabrand DBTV1301 - CHROMA SCHEMATIC DIAGRAM; CHROMA IC and Signal Paths

Durabrand DBTV1301
69 pages
Print Icon
To Next Page IconTo Next Page
To Next Page IconTo Next Page
To Previous Page IconTo Previous Page
To Previous Page IconTo Previous Page
Loading...
ABC D E F GH
ABC D E F GH
2
1
3
4
5
6
7
8
2
1
3
4
5
6
7
8
L601
0.56uH
X602
3.579545MHz
IS NON POLAR ONE.
THE ALUMI ELECTROLYTIC CAPACITOR MARKED NP
THE RESISTOR MARKED F IS FUSE RESISTOR.NOTE:
D601
1SS133
D605
11E1-EIC
Q603
KTC3203_Y
REG
Q605
KTC3203_Y
REG
Q604
KTC3203_Y
REG
Q606
KTC3203_Y
REG
Q610
KTC3198
H.CTL
Q609
KTC3198
H.CTL
C627
150V NA
LUMINANCE SIGNAL
AUDIO SIGNAL
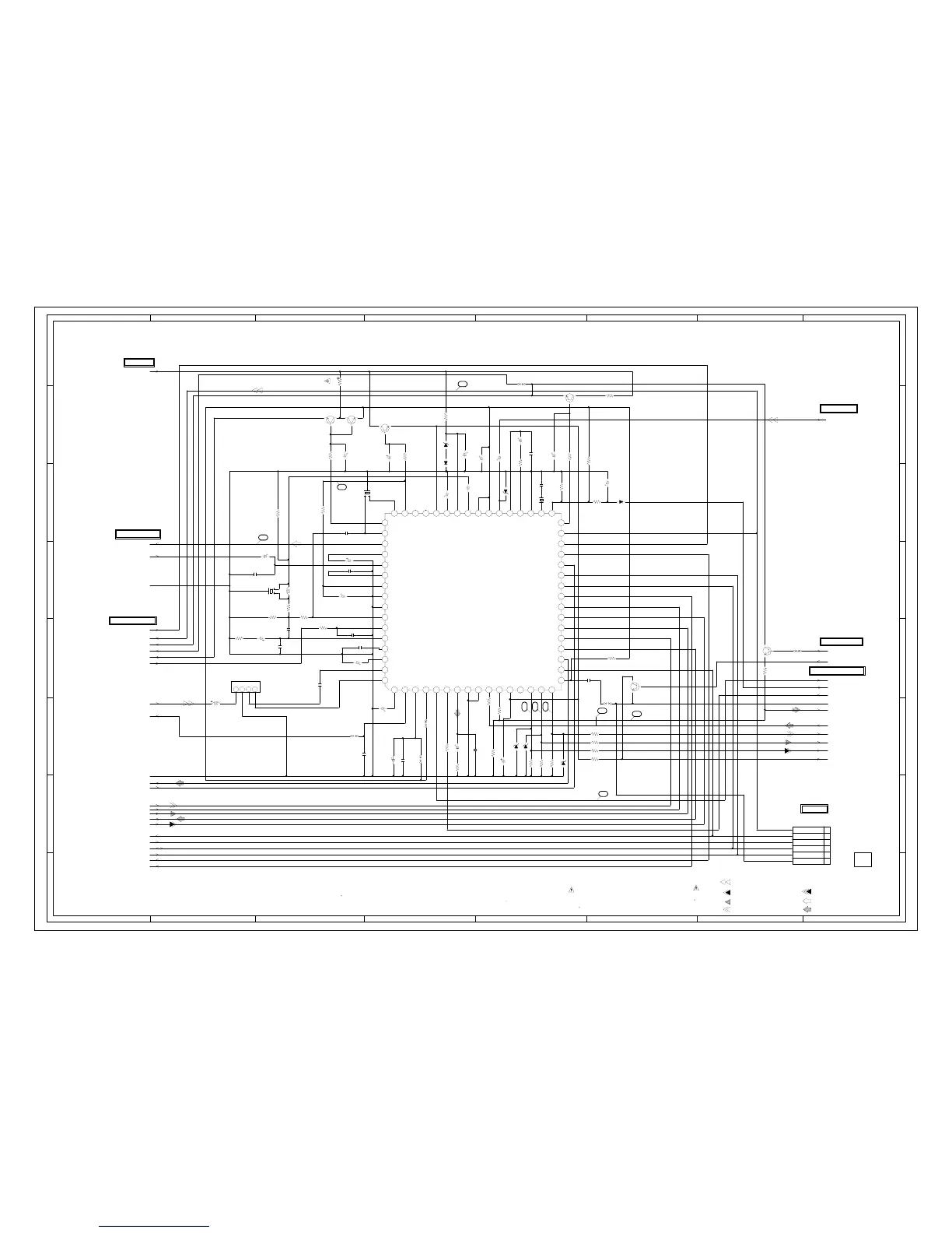
IC601
M61250FP
CHROMA IC
1101112
13 14 15 16
17 18 19
2
20 21 22 23 24 25 26 27 28 29
3
30 31 32
33343536373839
4
404142434445464748
49
5
50515253545556575859
6
6061626364
789
CF603
SFSRA4M50CF00-A0
CF604
TPSRA4M50C00-A0
CP601
00_8283_0611_00_000
1
2
3
4
5
6
R629
333W
GNDOUTOUTIN
CF601_1
TSF5229P3
1234
THE DC VOLTAGE AT EACH PART WAS MEASURED
WITH THE DIGITAL TESTER WHEN THE COLOR BROADCAST
WAS RECEIVED IN GOOD CONDITION AND PICTURE IS NORMAL.
NOTE:
C634
100P CH
C639
0.01 B
C623 0.0033 Y
C602 0.01 B
C626
0.01 B
C607 0.01 B
C616
15P CH
C655
0.0068 Y
C606
100P CH
C618
22P CH
C637 0.01 B
C622
0.022 B
C621
0.01 B
C640
0.01 B
C628
0.2250V KA
C629_1
150V YK
C619
2.250V KA
C625
150V KA
C645
4716V YK
C635 4716V YK
C632 0.150V KA
C624
4716V YK
C647
150V KA
C638
1050V KA
C601 1006.3V YK
C630
4716V YK
C603
150V KA
C612
100010V YK
C642
150V KA
C605
0.4750V KA
C613_2
163V MKT
C604 150V KA
R624
47
R146_1
220 1/4W
R614 2.2K
R619 2.2K
R625 2.2K
R630
100
R627 100
R617 1K
R631 100
R601
2.2K
R602
1K
R635
100
R639
1.5K
R628
100
R606
10K
R623 120 1/4W
R626
22K
R632
220
R646
47K
R638
22K
R642
1K
R648
1M
R612
1K
R633
8.2K
R615
470
R622
68
R605
4.7K
R641 22K 1/4W
R609
220
R616
10M
OF PRINTING AND SUBJECT TO CHANGE WITHOUT NOTICE
NOTE:THIS SCHEMATIC DIAGRAM IS THE LATEST AT THE TIME
DANS LA NOMENCLATURE DES PIECES
N’UTILISER QUE CELLS DECRITES
DANGEREUSES AN POINT DE VUE SECURITE
ETANTLES PIECES REPAREES PAR UNATTENTION:
DESCRIBED IN PARTS LIST ONLY
CRITICAL FOR SAFETY,USE ONES
ARESINCE THESE PARTS MARKED BYCAUTION:
D606 MTZJ6.8B
D612
MTZJ12B
D610 MTZJ12B
D602
MTZJ8.2B
D611 MTZJ12B
W823
W842
W818
W820
W817
W834
L607
15uH
DEFLECTION SIGNALB.SIGNAL
G.SIGNAL
R.SIGNAL
TUNER VIDEO SIGNAL
UNREG+12V
VIDEO_IN
AUDIO_OUT
RESET
AUDIO_IN
GND
CLOCK_CONT
RESET
Y_VIDEO
AT+5V
VD
AT+5VBACKUP H_CTL
TUNER+5V
OSD_BLK
PROTECT_H
AGC
SYNC
V_OUT
ABCL
OSD_G
OSD_R
OSD_B
V_FEEDBACK
IF GND
H_OUT
HD
AFT
H_SYNC
B.OUT
G.OUT
R.OUT
CLAMP
GND
HD
POWER
OSD_B
OSD_BLK
OSD_G
VD
OSD_R
SYNC
I2C_OFF
SDA
SCL
FSC
CLOCK_CONT
8
9
10
5
7
FROM POWER
G-3 G-4
(MAIN PCB)
FROM SOUND/AV
FROM/TO MICON/TUNER
NC NC
1.51
1.51
2.86
2.86
2.27
4.5
2.19
0
0
3.2
3.15
3.08
2.5
2.38
2.21
5.65
5.63.183.1002.51.84.72.88.72.557.96008.63
1.70
4.8
4.9
2.8
2.8
2.8
2.4
4.7
4.8
4.7
4.8
3.2
4.92
3.6
4.8
3.6
3.63.63.6
0
8663.452.74.24.84.82.634.62
6
5.69
5
7.9
6
0
NC
FROM/TO DEFLECTION/CRT
TEST POINT
6
11
12
00
0
13
4.9 7.2
5.5
7.2
5.5
8.8
5.5
4.9
R OUT
G OUT
VIF Vcc
VIF Vcc
V OUT
V RAMP FEEDBACK
AFC FILTER
DEF GND
DEF GND
FBP IN
H OUT
STRAT UP Vcc
INTELLIGENT MONI
INV FBP OUT
V PULSE OUT
B IN
R IN
G IN
FAST BLK
CLOCK CONT
SDA
SCL
POWER ON CONT
MCU RESET
Y SW OUT
VIDEO/CHROMA GND
VIDEO/CHROMA GND
CHROMA APC FILTER
EXT C in
VIDEO CHROMA Vcc
VIDEO CHROMA Vcc
TV/Y IN
33 ACL/ABCL
34 X’TAL
VREG Vcc
fsc OUT 1
fsc OUT 2
Hi Vcc
NC
32 AT5.7V REG OUT
QIF OUT
AUDIO OUT
AUDIO BYPASS
EXT AUDIO IN
FM DIRECT OUT
VIF VCO F/B
VIF GND
VIF GND
VIF VIDEO OUT
RF AGC OUT
VIF APC FILTER
VIF IN (1)
IF AGC FILTER1
IF AGC FILTER2
64 VIF IN (2)
1 V RAMP CAP
2 AFT OUT
47 8.7V REG OUT
48 LIMITER IN
49 P.Con5.7V REG
16 B OUT
17 H VCO F/B
NC
7.9
8.5
11.3
NC
FROM/TO SOUND/AV
FROM MICON/TUNER
SCL
SDA
IIC_OFF
INT.MONI
VIDEO
GND
TMA525
CHROMA SCHEMATIC DIAGRAM
PCB010

Related product manuals