EasyManua.ls Logo

Durastall 140 - Page 6

Default Icon
6 pages
Print Icon
To Previous Page IconTo Previous Page
To Previous Page IconTo Previous Page
Loading...
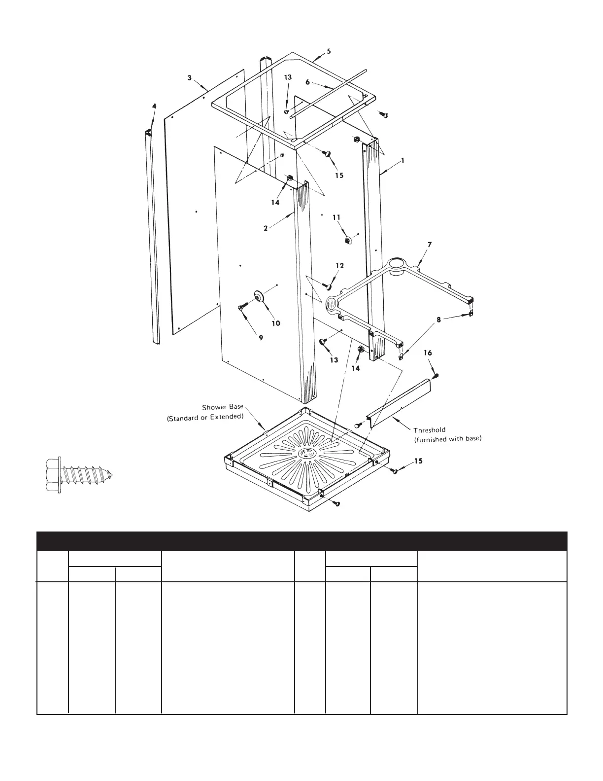
KEY PART NUMBER
NO. 32” 36” DESCRIPTION
1 80.318 40.317 Panel-Right Hand
2 80.318 40.317 Panel-Left Hand
3 80.316 40.315 Center Panel
4 80.220 80.220 Corner Lock Strip (2 req’d)
5 70.108 40.105 Top Frame - Molded
6 70.204 40.207 Curtain Rod
7 80.310 40.310 Safety Rail
8 80.803 80.803 #10-”U” Nut (2 req’d.)
9 40.803 40.803 1/4”-20 x 1” Flat Head Screw
(6 req’d.)
10 40.806 40.806 Safety Rail Washer (6 req’d.)
SI-188 (8•07)
PARTS ILLUSTRATION
PARTS LIST
E.L. MUSTEE & SONS, INC.
5431 West 164th Street • Brook Park, Ohio 44142
KEY PART NUMBER
NO. 32” 36” DESCRIPTION
11 40.805 40.805 1/4”-20 Flanged Hex Nut (6 req’d.)
12 80.812 80.812 #10 x 5/8” Truss Head Screw
(2 req’d.)
13 80.806 80.806 #10 x 3/8” Truss Head
Tapping Screw (18 req’d.)
14 80.810 80.810 1/4”-20 Hex Nut (4 req’d)
15 80.808 80.808 1/4”-20 x 1/2” Truss Head
Screw (4 req’d.)
16 80.809 80.809 1/4”-20 x 1/2” Hex Head
Screw (2 req’d.)
* 80.700 80.700 Shower Curtain W/Hangers
* 80.400 80.400 Valve & Shower Head Package
* Hardware NOT used
(x 2)