EasyManua.ls Logo

Durastall 140 - Further Installation and Maintenance; Secure Panels and Frame; Install Threshold and Curtain Rod; Care and Cleaning Instructions

Default Icon
6 pages
Print Icon
To Next Page IconTo Next Page
To Next Page IconTo Next Page
To Previous Page IconTo Previous Page
To Previous Page IconTo Previous Page
Loading...
SI-188 (8•07)5
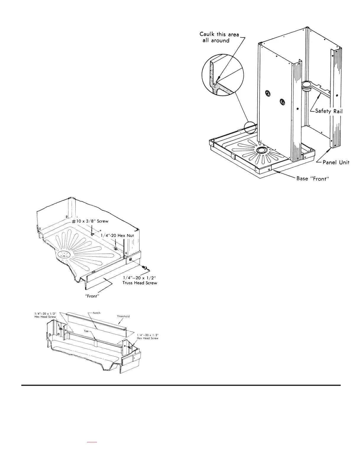
5.
Apply a small bead of quality waterproof caulking (not
furnished) in track on Base – see illustration. Use the
Safety Rail to lift the panel unit and place into the track
against the caulking. It may be necessary to re-tap the
Corner Lock Strips to ease installation. (FIG. 5)
6.
From the outside, insert a 1/4”-20 x 1/2” Truss Head Screw
in the Base and through the pre-punched hole in the Front
Support. Secure with a 1/4”x 20 Hex Nut on the inside.
Repeat for the remaining Front Support. Insert a #10 x 3/8”
Truss Head Tapping Screw into the pre-punched center hole of
the back panel (this will align the panel to the base.) Follow the
same procedure for both side panels. Tighten all three center
screws, then start the remaining six screws. After all screws are
started, tighten securely. (FIG. 6)
7.
Set Top Frame in place and secure to panels and front supports
following the same procedure previously used for securing the
base. Note: A bead of silicone caulking on the top frame where it
meets the panels will help further seal the unit against leaks.
8.
Set Threshold in place between the front support
extrusions. Be sure that threshold “notch” is locked
into base “tee” section. Insert a 1/4”-20 Hex Head
Screw through the pre-punched hole in the front
support flange and screw into the threaded area of
the Threshold. Follow the same procedure for the
other side. After both screws are started, tighten
securely. (FIG. 7)
9.
(If door is to be installed on unit, refer to instructions
provided with door assembly at this time.) Slide
Curtain Hooks onto Curtain Rod. Position Curtain
Rod over molded sockets on top surface of Top
Frame. Press Curtain Rod down to snap in place.
CARE AND CLEANING
Your Shower Cabinet may be cleaned with a mild soap solution in warm water using a soft cloth. For stubborn
stains use Soft Scrub by Clorox or a powdered detergent such as Spic-n-Span. Never use abrasive scouring
powder or steel wool pads as they will dull and scratch the surface. A periodic coating of a silicone based marine
polish will help retain the fine finish of your unit.
WARNING! - Do not use spray on cleaners that require daily use without immediately rinsing to stop chemical reaction.
Damage of unit material will result and void warranty.
FIG. 7
FIG. 6
FIG.5