EasyManua.ls Logo

Dyadic Systems SCN Series - RS232 C;RS485 Junction Converter Circuit; Connector Converter: ADP-2-4

Dyadic Systems SCN Series
63 pages
Print Icon
To Next Page IconTo Next Page
To Next Page IconTo Next Page
To Previous Page IconTo Previous Page
To Previous Page IconTo Previous Page
Loading...
. .
Dyadic Systems – Mechatronics Cylinder Manual MF-005500-EN-55/63
7.3. RS232C/RS485 Junction Converter Circuit
(Model: ADP-1)
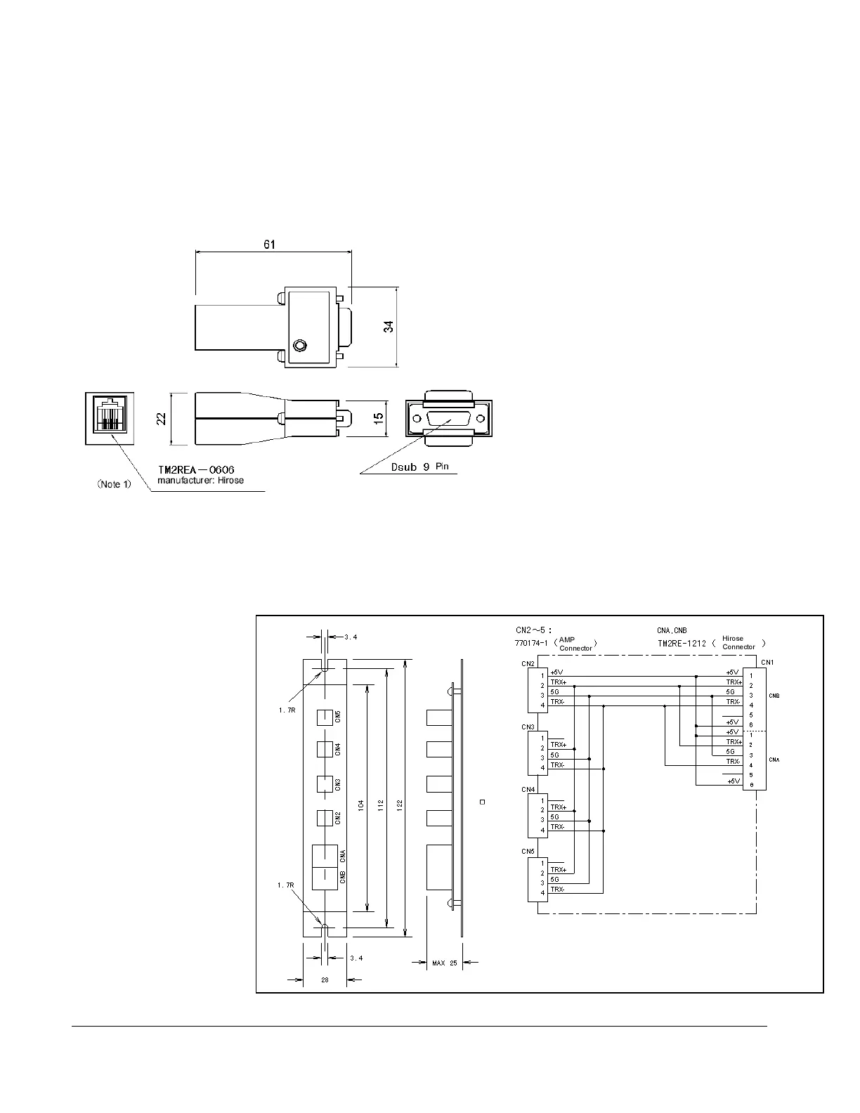
(1) Model No.: ADP-1
(2) Dimensions
Please refer to 4.4 (wiring examples of outside connections) for connector connection. Please use SIO
cable (6 conductors) for connector cable.
7.4. Connector Converter: ADP-2-4
(1) model: ADP-2
(2) Dimensions
and circuit diagram
(Note)
In case of ADP-2 use, please use at least one axis on
CN2.
Because CN3, CN4 and CN5 are not wired with +5V,
only CN2 is wired to +5V.

Table of Contents

Related product manuals