EasyManua.ls Logo

E-Mon Class 3400 Meter - Page 13

E-Mon Class 3400 Meter
20 pages
Print Icon
To Next Page IconTo Next Page
To Next Page IconTo Next Page
To Previous Page IconTo Previous Page
To Previous Page IconTo Previous Page
Loading...
CLASS 3400 METER
13 62-0391-03
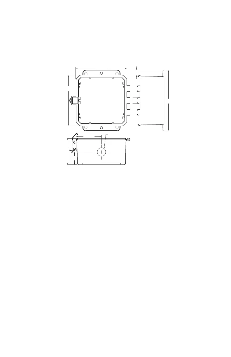
6.0 METER INSTALLATION
6.1 Mounting the Class 3400 Meter
Use appropriately sized mounting hardware to fasten the meter enclosure to the
selected mounting surface. The four housing mounting holes are centered 8.75” H x 4”
W for the CL3400.
NOTE: Meters supplied in plastic NEMA 4X enclosures and NEMA JIC Steel
Enclosures (UL Type 1) enclosures must be installed indoors.
6.2 Main Power Board Connections
1. Installing a temporary ground for ESD protection:
With all circuits de-energized, connect a temporary protective earth ground con-
nection for ESD protection. Prior to performing any unit wiring, be sure to dis-
charge any static on your person.
2. Installing the Class 3400 protective earth ground:
Connect an earth ground wire to the Class 3400 protective earth ground lug with
a torque of 7 N-m.
M34684
6-35/64 (166)
6-35/64
(166)
5/8 (16)
7-51/64
(198)
3-17/64 (83)
1-5/8
(41)
3-25/64
(86)
Ø 1-3/32 (28) THROUGH
NEAR SIDE ONLY

Related product manuals