EasyManua.ls Logo

Eaton EASY721 TC Series - EASY7 Series Input Configuration

Eaton EASY721 TC Series
12 pages
Print Icon
To Next Page IconTo Next Page
To Next Page IconTo Next Page
To Previous Page IconTo Previous Page
To Previous Page IconTo Previous Page
Loading...
Emergency On Call Service: Local representative (Eaton.eu/aftersales) or +49 (0) 180 5 223822 (de, en) 3/12
02/18 IL05013015Z
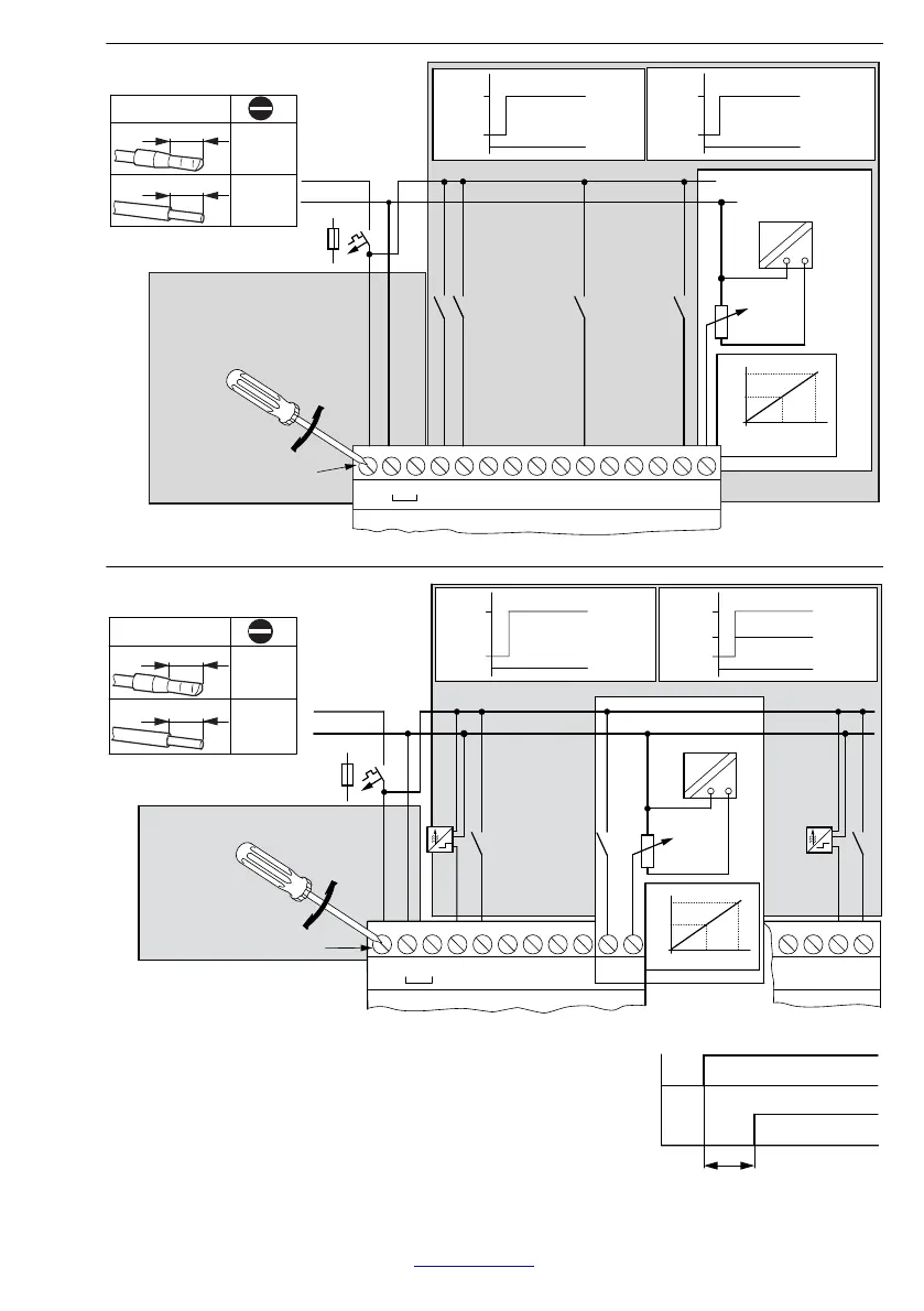
115/230 V h Input 115/230 V h
NLN
l1
I2
I3
I4 I5
I6
I7 I8
I9
I10
I11 I12
0.5 – 0.7 Nm
3.5 mm
L
N
> 1 A
AB: U
e
= 24 Vh 50 Hz (20.4 – 28.8 Vh)
I
e
= 300 mA 24 V
AC: U
e
= 100/230 Vh 50/60 Hz (85 – 264 Vh)
I
e
= 70 mA 100 V, 35 mA 230 V
I1–I6, I9 –I12 = 0.25 mA 115 V
I7, I8 = 4 mA 115 V
1 f 79 V
0 F 40 V
AC
I1–I6, I9 –I12 = 0.5 mA 230 V
I7, I8 = 6 mA 230 V
I1–I6, I9, I10 = 4 mA 24 V
I7, I8, I11,I12 = 2 mA 24 V
1 f 15 V
0 F 5 V
AB
+10 V
10 V
5 V
0 V
h
0
512 1023
0 V
l7, l8
EASY7…-AB-…C…
EASY7…-AC-…C…
6,5 mm (0.25”)
6,5 mm (0.25”)
0.2- 2.5 mm²
AWG 22-12
0.2- 4 mm²
AWG 22-12
+10 V
0 V
10 V
5V
0V
+...V
0
512 1023
0V
0.5 – 0.7 Nm
3.5 mm
DA: U
e
= 12 V H (10.2 – 15.6 V H) I
e
= 200 mA
DA: +12 V
0V
l7, I8
> 1 A
0 V
l1
I2
I3
I4 I5
I6
I7 I8
I9
I10
I11 I12
1 f
15 V
0 F
5 V
I7, I8, I11, I12 = 2.2 mA/24 V
DC
I1–I6, I9, I10 = 3.3 mA/24 V
h
DC: +24 V
DC: U
e
= 24 V H (20.4 – 28.8 V H) I
e
= 140 mA
1 f
8 V
0 F
4 V
I7, I8, I11 , I12 = 1.1 mA/12 V
DA
I1–I6, I9, I10 = 3.3 mA/12 V
1 f 8 V
EASY7…-DA-…C…
EASY7…-DC-…C…
RUN/STOP
Power on
2 s
U
e

Related product manuals