EasyManua.ls Logo

EAW KF400a - ENGINEERING DRAWINGS; DIMENSIONAL DRAWING KF400 a; CCPM INPUT SECTION BLOCK DIAGRAM

EAW KF400a
4 pages
Print Icon
To Next Page IconTo Next Page
To Next Page IconTo Next Page
To Previous Page IconTo Previous Page
To Previous Page IconTo Previous Page
Loading...
Acoustic Performance Partnership Eastern Acoustic Works KF400a
One Main Street, Whitinsville MA, 01588 USA • Phone 508/234-6158 • Toll Free 800/992-5013 • Fax 508/234-8251 • Web http://www.eaw.com • email info@eaw.com
A
C
O
U
S
T
I
C
A
L
P
E
R
F
O
R
M
A
N
C
E
P
A
R
T
N
E
R
S
H
I
P
TECHNICAL SPECIFICATIONS KF400a
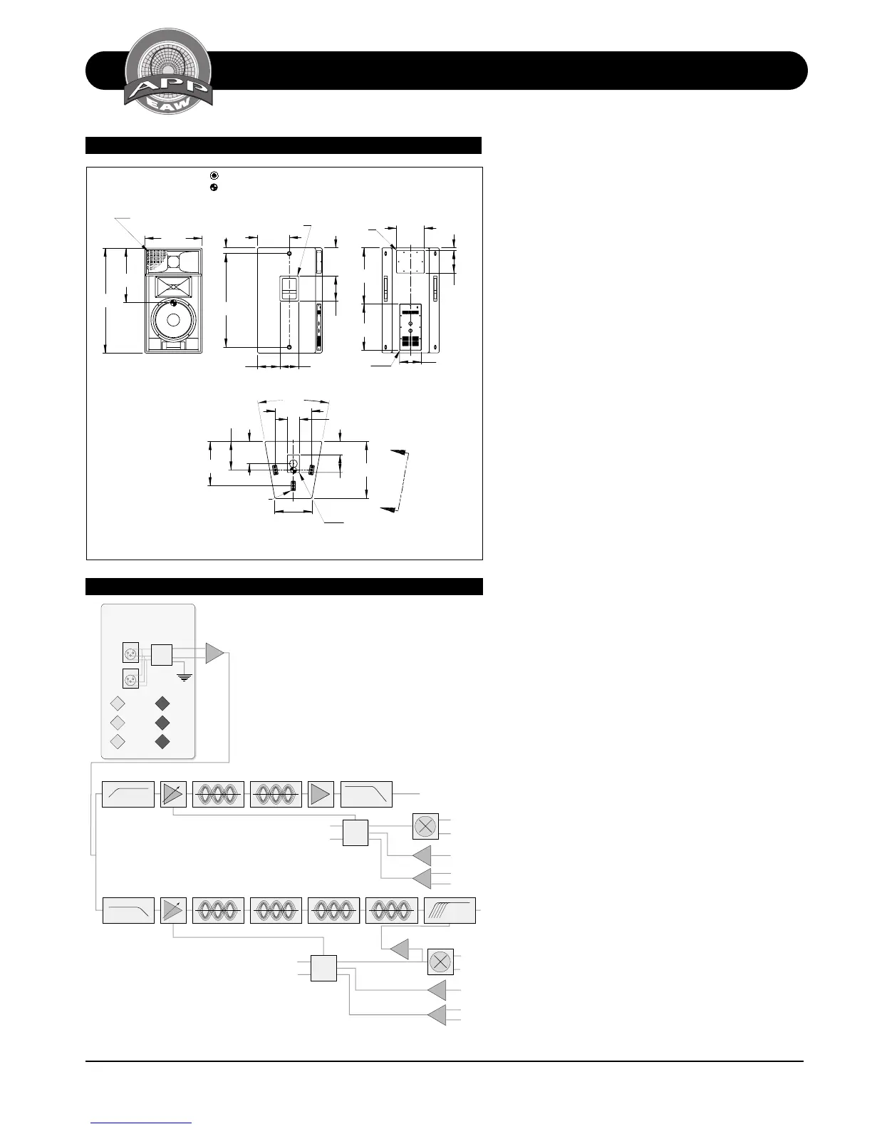
DIMENSIONAL DRAWING
KF400a
ALL DIMENSIONS ARE IN INCHES UNLESS OTHERWISE NOTED
510614
exp 2/2/99 dpm
INDICATES MOUNTING POINT, 1/4-20 THREADED HOLE.
INDICATES CENTER OF BALANCE.
BACK
SIDES
FRONT
19.75
PARTIALY SHOWN GRILL
36.50
19.00
8.75
6.44
9.77
1.97
32.56
7.74
10.99
2X HANDLES
C
9.50
L
7.50
INPUT
16.12
LID
.89
19.51
7.88
TOP/BOTTOM
4.68
9.93
C
L
6.12
19.75
7.74
12.51
4.12
15.44
BOTTOM ONLY
A
12.79
20°
A
CASTER PALLET MOUNT,
BOTTOM ONLY
CCPM™ INPUT SECTION BLOCK DIAGRAM
Voltage
Controlled
Amplifer
Voltage
Controlled
Amplifer
HF Driver
Alignment
(delay)
LF Parametric
Filter #1
HF Parametric
Filter #1
HF Control Voltage
HF Parametric
Filter #1
2nd Order
Low Pass Filter
4th Order
Low-Pass Filter
LF Parametric
Filter #2
LF Parametric
Filter #3
LF Parametric
Filter #4
Low Gain
Control
LF Sliding
High -Pass Filter
Low Sliding
Filter Control
Low Driver
Multiplexer
Low O/P V
Low O/P I
Low SOA
Low CLAMP C
V
Low SIG
4th Order
High-Pass Filter
+
-
High Gain
Control
Low Control Voltage
Low Gain Set
Low Mute
High Gain Set
High Mute
CV
Low S
i
Low SOA
Compress
Low ClampCompress
High Driver
Multiplexer
High O/P V
High SIG
High O/P I
High SOA
High CLAMP CV
High SIG
+
-
High SOA
Compress
HighClamp
Compress
t
High CMRR
Input Receiver
RFI Attenuation /
Transient Protection
Signal
Input
Signal
Loop
XLR / Input PCB
Analog Control Module
ACM PCB
+
-
XLR-M
1
2
3
XLR-M
1
2
3
Power On Fault
HF Output HF Limit
LF Output LF Limit

Related product manuals