EasyManua.ls Logo

Eclipse VeriFlame 5600 - Dimensions

Eclipse VeriFlame 5600
42 pages
Print Icon
To Next Page IconTo Next Page
To Next Page IconTo Next Page
To Previous Page IconTo Previous Page
To Previous Page IconTo Previous Page
Loading...
10
Eclipse Veri-Flame Instruction Manual 818-2/02
Specifications (continued)
PARAMETER DESCRIPTION
Approvals No Purge & Purge Models:
Series 5602: UL listed, CSA certified, FM approved and IRI acceptable.
Series 5603: No approvals.
Series 5605: UL listed, FM approved and IRI acceptable.
Modulating Models:
Series 5602: UL recognized (must be mounted in panel), CSA certified, FM
approved and IRI acceptable.
Series 5603: No approvals.
Shipping Weight 1.4 kilograms (3 lbs.) for all Veri-Flame models.
0.9 kilograms (2 lbs.) for Models 5602-10 & 5602-10-1 bases.
1.2 kilograms (2.6 lbs.) for Model 5602-40 base.
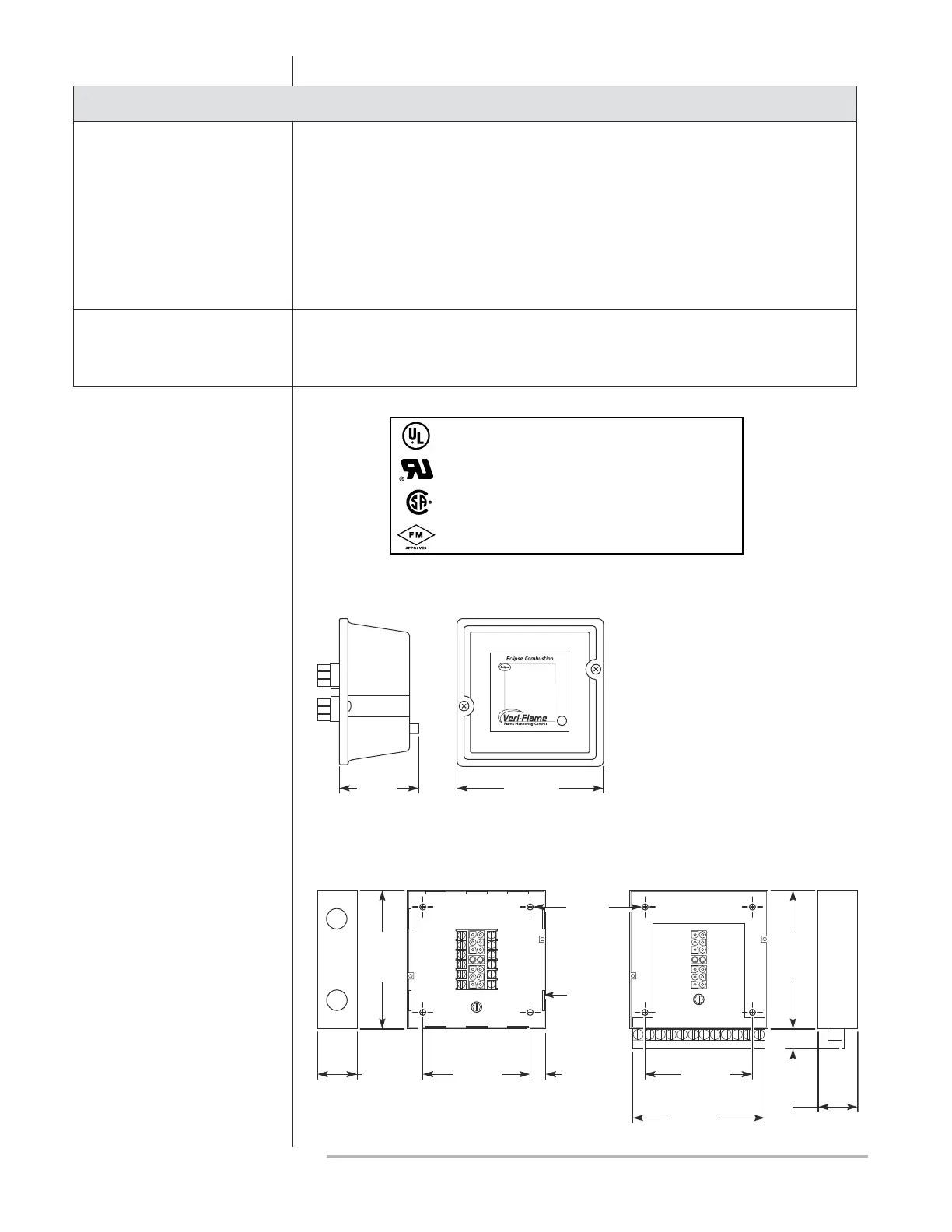
Dimensions
76mm
(3")
133mm
(5-1/4") Square
102mm
(4") Square
13mm
(1/2")
5.5mm
(7/32") Dia.
Mounting
Holes (4)
Knockouts
(10) for
13mm (1/2"
Conduit
Veri-Flame Unit/All Models
Veri-Flame Bases/Purge & No Purge Models
Model Number 5602-10 Model Number 5602-10-1
102mm
(4") Square
124mm
(4-7/8")
38mm
(1-1/2")
127mm
(5")
Square
38mm
(1-1/2")
127mm
(5")
Square
19mm
(3/4")
(See chart below.)
UL Listed, Guide No. MCCZ, File MH12613
UL Recognized, Guide No. MCCZ2, File MH12613
CSA Certified, Class No. 2632 01, File 37456
FM Approved, Class No. 7610, Report 1Y2A4.AF
Approval Information

Table of Contents

Related product manuals