EasyManua.ls Logo

Electrolux CAL 61 - Page 29

Electrolux CAL 61
59 pages
Print Icon
To Next Page IconTo Next Page
To Next Page IconTo Next Page
To Previous Page IconTo Previous Page
To Previous Page IconTo Previous Page
Loading...
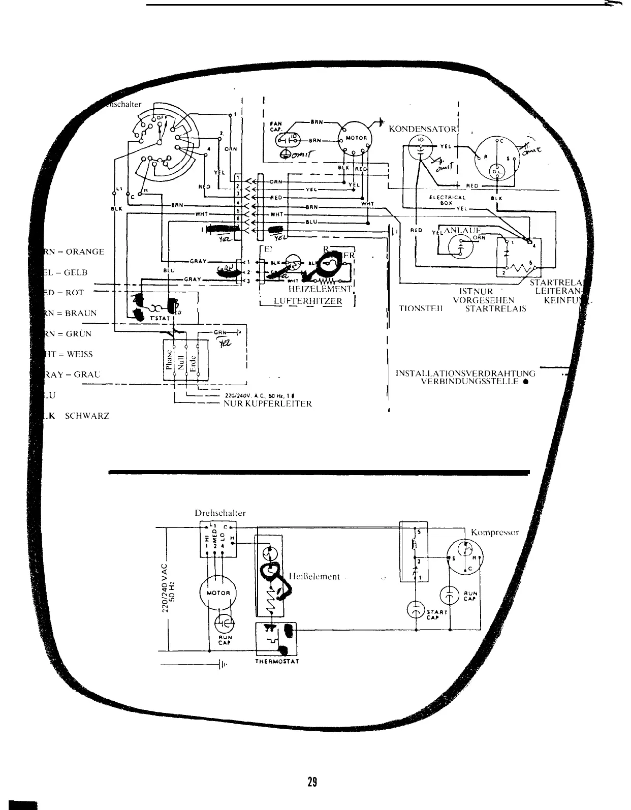
L--BRN-Y-e
KONDENSATOR!
a
KOMPRESSOR
I
I
ANSCHLUSS 3 IST
NlJK
FUR DEN
LEITERAN-
k. I
;
LUFIER_HITZER
1
SCHLUSS
VORGESEHEN
UND KEIN FUI
TIONSTFII
DES
START.RFLAlS
I
NDSCHALTE
UNG
WERKSVERDRAHTUNG
IAY
=
GRAU
ABZWEIGKASTEN
INSTALI.ATIONSVERDRAHTUNG
---
VERBliiDUN(;SSTELI.E
0
.U
= BLAU
VERWENDEN
,
>K
=
SCHWARZ
I

Related product manuals