EasyManua.ls Logo

Electrolux EW27MO55HSA - Wiring Schematic Oven off Condition

Electrolux EW27MO55HSA
48 pages
Print Icon
To Next Page IconTo Next Page
To Next Page IconTo Next Page
To Previous Page IconTo Previous Page
To Previous Page IconTo Previous Page
Loading...
Wiring Diagrams
5-1
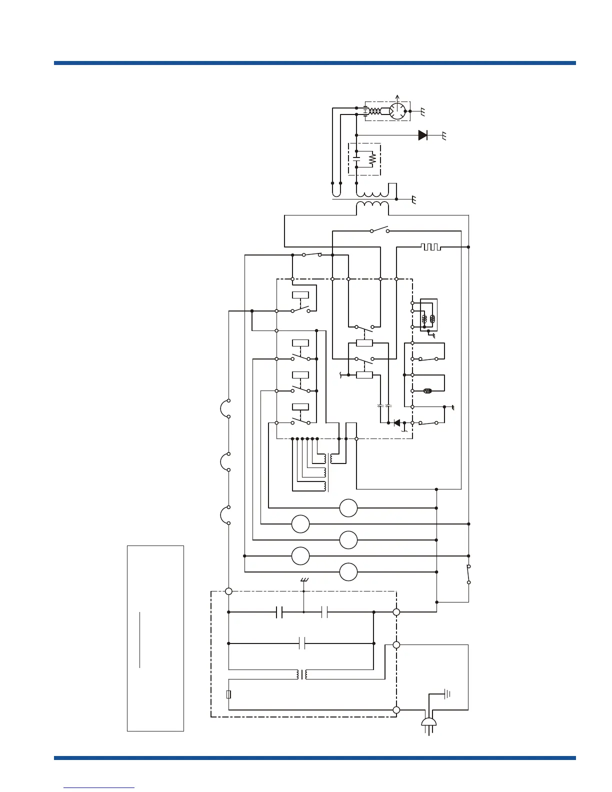
SCHEMATIC
NOTE: CONDITION OF OVEN
1
. DOOR CLOSED.
2. CLOCK APPEARS ON DISPLAY.
A1
A3
A7A9
L.V.
TRANSFORMER
CONTROL
UNIT
SWITCH
3RD
DOOR
DMFMOL
CM
TURNTABLE MOTOR
CONVECTION MOTOR
TTM
OVEN LAMP
FAN MOTOR
DAMPER MOTOR
PNK
PPL
BRN
ORG
*
REDPNK
MONITOR SWITCH
FUSE
20A
60Hz
120V
0.0033FAC125V
0.0033F AC125V
0.22F AC250V
NOISE FILTER UNIT
NOISE SUPPRESSION COIL
OVENMAGNETRON
CUT-OUT
THERMALTHERMAL
CUT-OUT
CUT-OUT
THERMAL
CONV.
SCHEMATIC DIAGRAM (DOOR CLOSED,COOK OFF CONDITION)
SECONDARY
PRIMARY INTERLOCK SWITCH
(RY1)
MAGNETRON
(RY2)
INTERLOCK
RELAY
RY2RY3
RY4 RY5 RY6
RY1
A5 (RY1)
0.94
TRANSFORMER
POWER
CAPACITOR
DAMPER
SWITCH
THER-
MISTOR
E1 E2 E3 E4 E5 F3
AH SENSOR
F2 F1
DOOR
SENSING
SWITCH
WIRE COLOR CODES ARE APPLICABLE TO PRIMARY CIRCUIT ONLY AND NOT
APPLICABLE TO LOW VOLTAGE CIRCUIT AND SECONDARY CIRCUIT.
NOTE: 1.
2.
*3.
H.V.
RECTIFIER
E6
ELEMENT
HEATING
HOT WIRE(S) MUST BE CONNECTED TO THE TERMINAL WITH BLUE MARK
ON THE LAMP SOCKET AND "H" MARK ON THE POWER SUPPLY CORD.
CIRCUITS SUBJECT TO CHANGE WITHOUT NOTICE
(RY3)
(RY3)
(RY2)
B5
B6
B4
B3
B2
B1
B8
B10
Wiring Schematic
Oven Off Condition

Other manuals for Electrolux EW27MO55HSA

Related product manuals