EasyManua.ls Logo

Electrolux FLE120 - Drain Valve

Electrolux FLE120
91 pages
Print Icon
To Next Page IconTo Next Page
To Next Page IconTo Next Page
To Previous Page IconTo Previous Page
To Previous Page IconTo Previous Page
Loading...
Service
Manual
9406
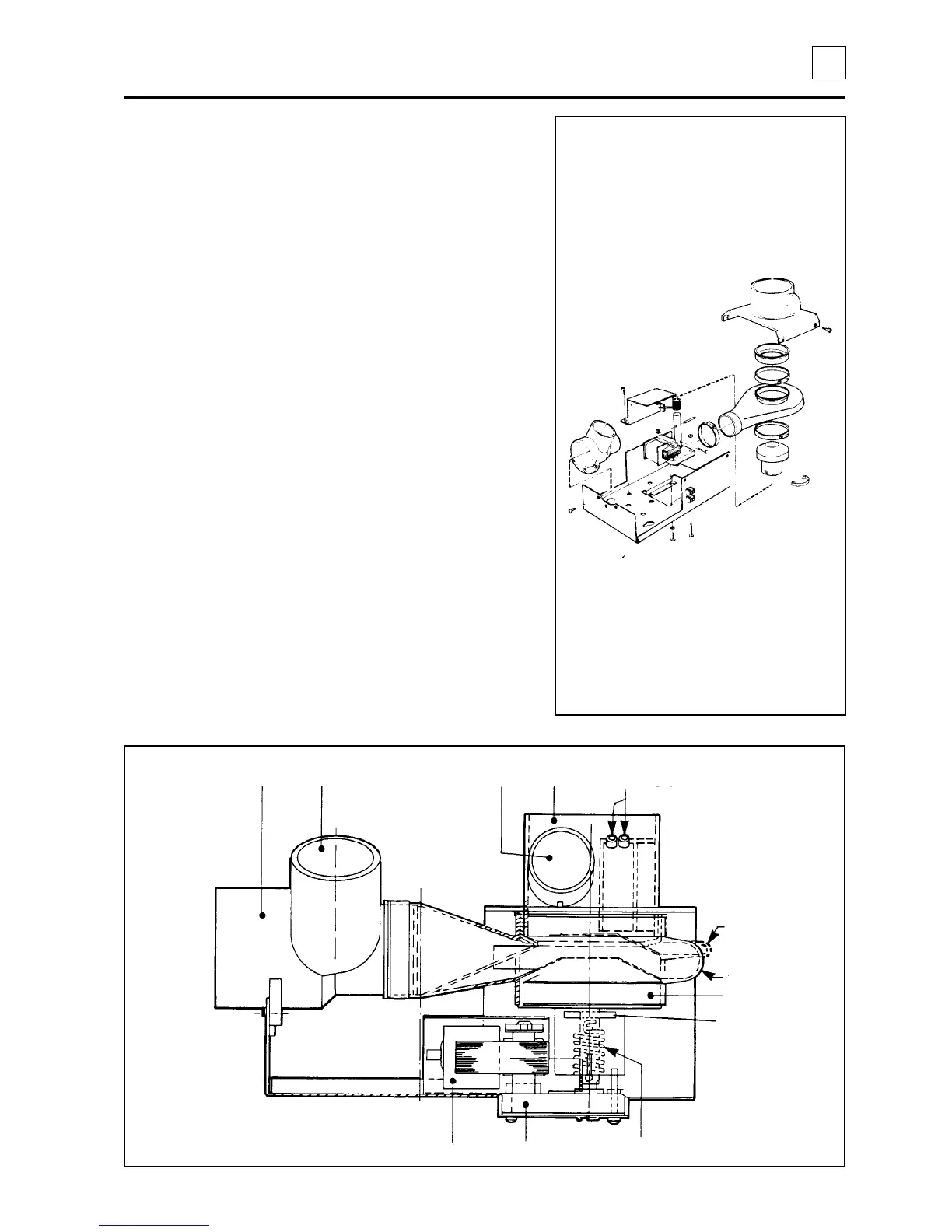
Description
The drain valve is a motor-operated diaphragm
valve which ensures rapid machine emptying by its
opening on a large cross-sectional surface area. Its
design is self-clearing, which eliminates the need
for fluff filters.
The main components are:
motor with gear
acme-threaded plunger rod with plunger and
return spring
rubber diaphragm
connections for water filling, overfilling and
drainage.
In the open position the valve is de-energised. The
plunger rod is thus screwed down to its lowest
position by the returning spring. The diaphragm is
compressed, forcing the piston downwards and
opening the valve.
When the motor is activated and begins to rotate,
the plunger rod is screwed upwards via the gear,
the diaphragm is compressed, forcing the plunger
upwards, and the valve closes.
The overfilling connection is connected to the upper
half of the washing drum, and the water and suds
are led directlyto the waste outlet, should the inlet
valves or level control cease to function.
The connection for water filling as well as a nipple
for connection of the sensing line for the level
control are located on the riser to the washing
drum.
38. Drain valve
38
1
Drain
Overfilling
connection
Washing drum
riser
Nipple for sender
hose level control
Diaphragm
closed position
Open position
Plunger rod
Guide pin
Motor
Return spring
Gear wheel
Water filling
hose connection

Table of Contents

Related product manuals