EasyManua.ls Logo

Electrolux LNS8FF19S - Page 7

Electrolux LNS8FF19S
76 pages
Print Icon
To Next Page IconTo Next Page
To Next Page IconTo Next Page
To Previous Page IconTo Previous Page
To Previous Page IconTo Previous Page
Loading...
WARNING!
Fix the appliance in
accordance with installation
instruction document to
avoid a risk of instability of
the appliance.
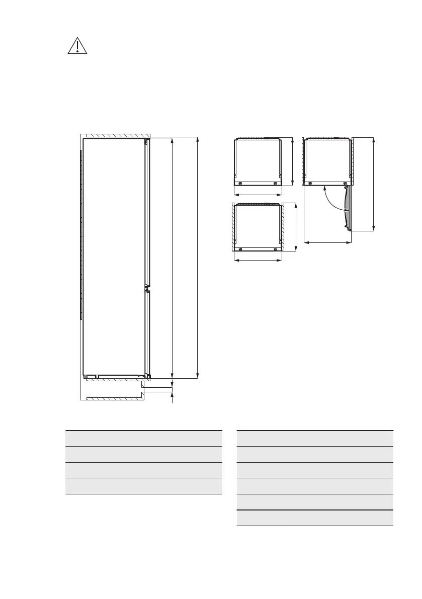
3.1 Dimensions
B
A
H1
W1
D1
W2
D2
W3
D3
9
Overall dimensions ¹
H1 mm 1884
W1* mm 548
D1 mm 549
¹ the height, width and depth of the
appliance without the handle
* including the width of the bottom hinges
(8 mm)
Space required in use ²
H2 (A+B) mm 1936
W2* mm 548
D2 mm 551
A mm 1894
B mm 36
² the height, width and depth of the
appliance including the handle, plus the
space necessary for free circulation of
the cooling air
ENGLISH 7

Related product manuals