EasyManua.ls Logo

Emerson unidrive m200 - Page 42

Emerson unidrive m200
120 pages
To Next Page IconTo Next Page
To Next Page IconTo Next Page
To Previous Page IconTo Previous Page
To Previous Page IconTo Previous Page
Loading...
42 Unidrive M / HS Frame 7 to 10 Power Installation Guide
Issue Number: 5
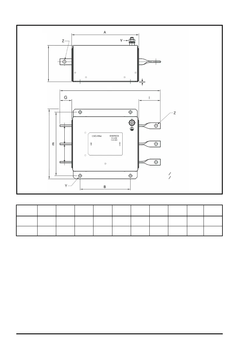
Figure 3-19 External EMC filter (size 9A)
Table 3-10 Size 9A external EMC filter dimensions
CT part
number
ABDE FGH IJW
4200-3021
220 mm
(8.66 in)
170 mm
(6.70 in)
120 mm
(4.72 in)
210 mm
(8.27 in)
2 mm
(0.08 in)
40 mm
(1.57 in)
339 mm
(13.34)
73 mm
(2.87 in)
60 mm
(2.36 in)
230 mm
(9.06 in)
4200-1660
280 mm
(11.02 in)
180 mm
(7.09 in)
105 mm
(4.13 in)
225 mm
(8.86 in)
2 mm
(0.08 in)
40 mm
(1.57 in)
360 mm
(14.17 in)
73 mm
(2.87 in)
60 mm
(2.36 in)
245 mm
(9.65 in)
F
J
J
V: Ground stud - M10
Y: O 10.5mm
Z: O 10.8mm
D
W
H
Unidrive M frame7 to 10 Power Installation Guide issue5.book Page 42 Tuesday, May 24, 2016 11:52 AM

Table of Contents

Other manuals for Emerson unidrive m200

Related product manuals