EasyManua.ls Logo

EMS 1304 - Page 54

EMS 1304
56 pages
Print Icon
To Next Page IconTo Next Page
To Next Page IconTo Next Page
To Previous Page IconTo Previous Page
To Previous Page IconTo Previous Page
Loading...
53
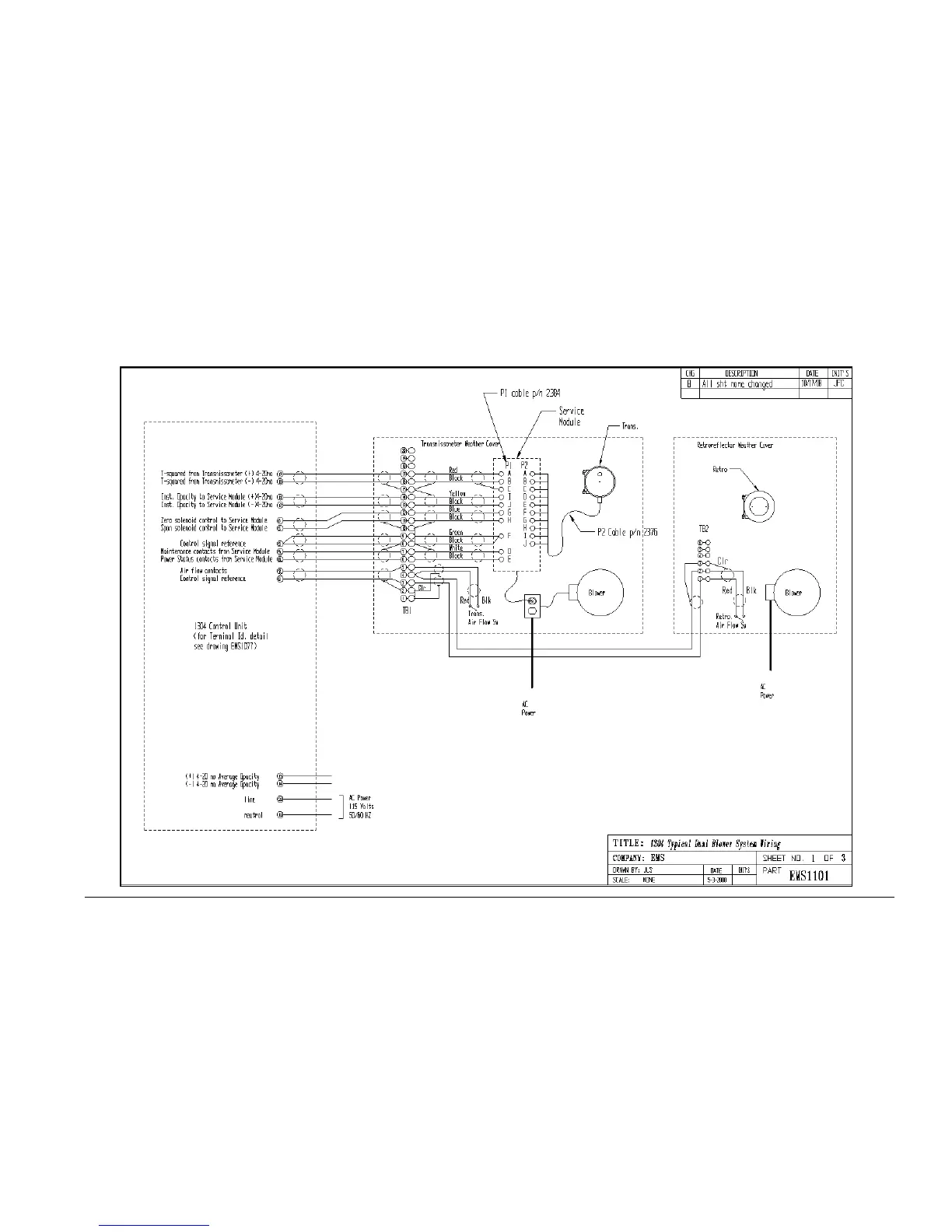
EMS1101 - Sht 1 of 3 Dual Blower system wiring

Table of Contents

Related product manuals