EasyManua.ls Logo

ESA VT60 - Tightening the Fixing Screws

Default Icon
976 pages
Print Icon
To Next Page IconTo Next Page
To Next Page IconTo Next Page
To Previous Page IconTo Previous Page
To Previous Page IconTo Previous Page
Loading...
CHAPTER 30
Mounting the terminal within the container
405.1200.037.2 - Rel.: 2.21 of 25/02/2008
30-10
Tightening the
fixing screws
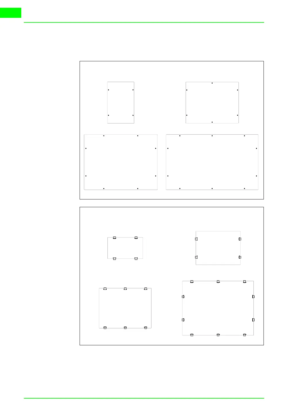
For the best possibile grip of the basket to the container, you are advised:
• To respect the screwing sequenze illustrated.
• Initially tighten the fixing screws with moderate pressure so as to ensure
that contact is even at all points; once all the screws have been inserted,
repeat the sequence with a final tightening.
7
8
3
1
2
4
5
6
1
32
4
3
1
4
2
6
5
10
1
6
3
759
2
4
8
Using nuts
Using hooks
1 6 4
253
1 4
23
3
1 4
2
10
1
6
759
2
4
8
3

Table of Contents

Related product manuals