EasyManua.ls Logo

ESP Ecocent 200L - 5.2 Unit Dimensions

ESP Ecocent 200L
40 pages
Print Icon
To Next Page IconTo Next Page
To Next Page IconTo Next Page
To Previous Page IconTo Previous Page
To Previous Page IconTo Previous Page
Loading...
8of 36
ESP400-10-200L and 300L
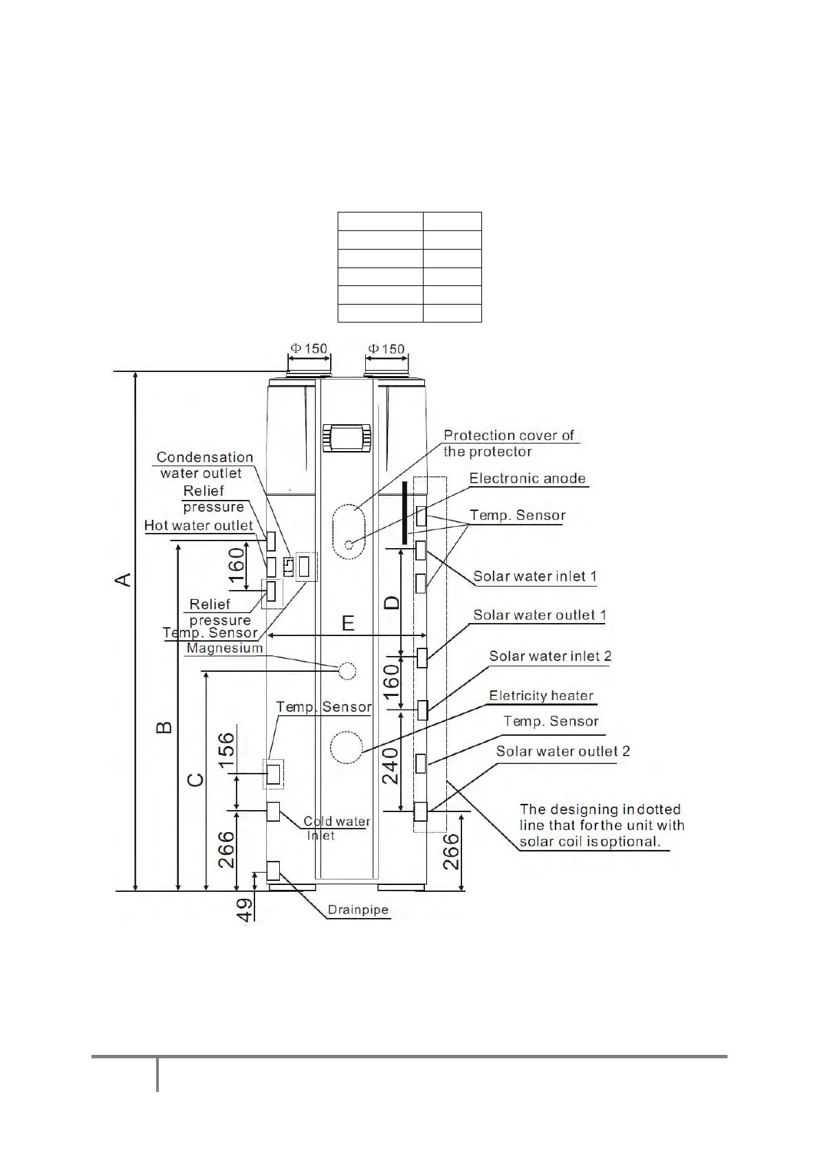
5.2 Dimensions:
200L Ecocent
Dimension
(mm)
A
1705
B
1050
C
665
D
305
E
Ø 560

Table of Contents

Related product manuals