EasyManua.ls Logo

Eurotech Dishwasher - Page 15

Eurotech Dishwasher
36 pages
Print Icon
To Next Page IconTo Next Page
To Next Page IconTo Next Page
To Previous Page IconTo Previous Page
To Previous Page IconTo Previous Page
Loading...
15
ENGLISH
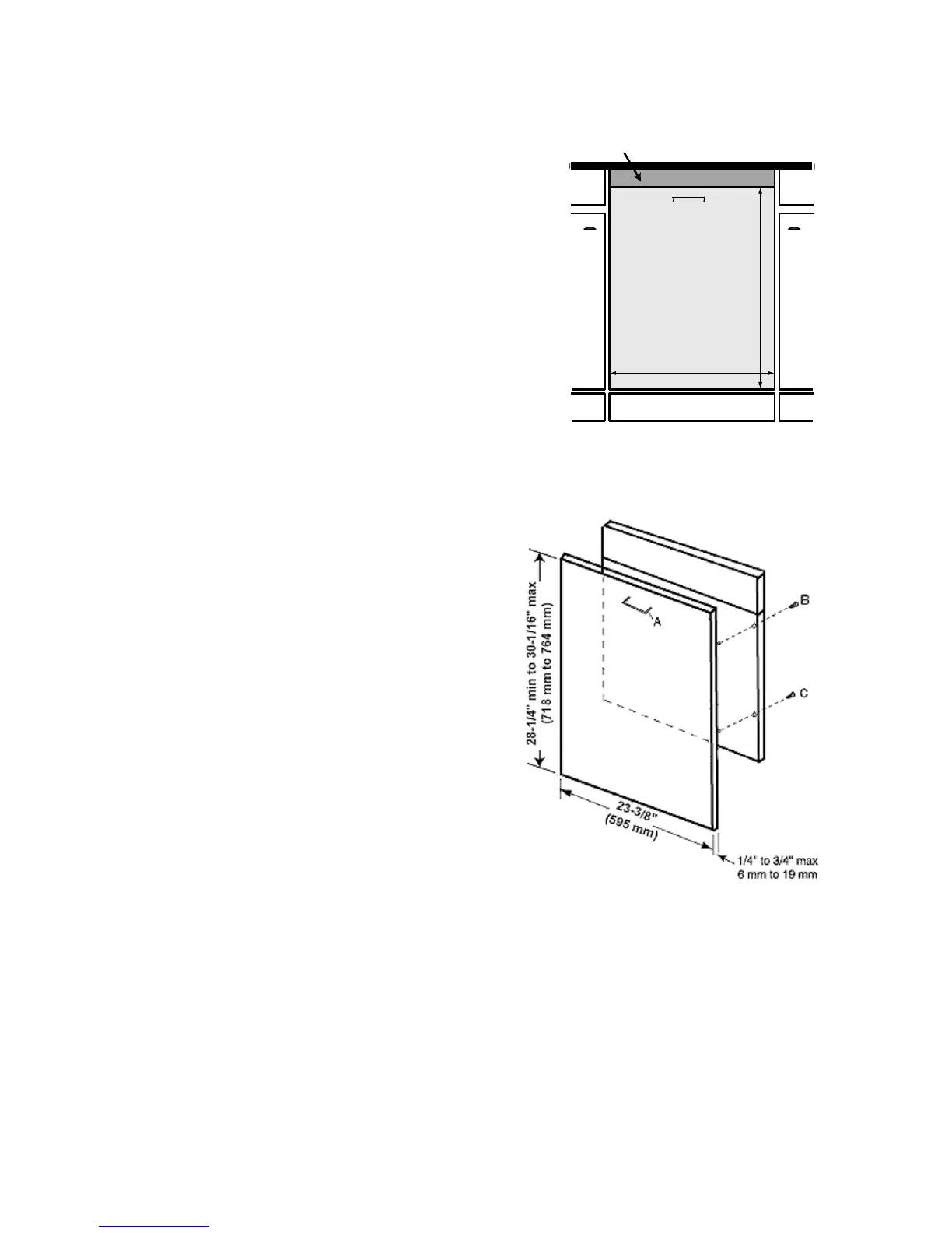
INSTALLING A CUSTOM WOOD PANEL
To install the custom wood panel, follow the steps below.
1. Attach the handle (A) to the wood panel. (It is best to
use a handle instead of a knob.)
2. Remove the second and fourth screws (B and C) from
the inside top of the dishwasher door and discard.
3. With the door slightly open, position the wood panel
with the holes in alignment with the door and secure it
in place with 2-12 squeeze clamps on both sides.
4. If you are installing a 30-1/16 high panel, it should
extend 1-13/16 above the control panel. Its a good
idea to take this measurement before you proceed.
5. Insert the 1-1/2 screws supplied with the unit through
the panel and door.
6. Secure the screws.
7. Close the door and, if necessary, adjust level by
adjusting the front levelling legs for proper height
clearance.
8. Fasten the dishwasher to the cabinet (see page 9).
WOOD PANELS THE SAME HEIGHT AS THE DISHWASHER DOOR (23-1/4)
If the custom panel is the same height as the dishwasher door,
a 2 decorative fill strip or pull-out cutting board must be used
to fill the area between the panel and the counter top (as
illustrated at right).
Custom-built 2-inch decorative fill strip or
cutting board (not available to order)
toe kick
28-1/4"
718 mm
23-3/8"
595 mm

Related product manuals