EasyManua.ls Logo

Everdure DWF125WE - Installation Instruction; Installation Preparation and Levelling; Water and Drain Connections

Everdure DWF125WE
22 pages
Print Icon
To Next Page IconTo Next Page
To Next Page IconTo Next Page
To Previous Page IconTo Previous Page
To Previous Page IconTo Previous Page
Loading...
The installation of the pipes
and electrical equipment
should be performed by a
professional.
Warning
Electrical Shock Hazard
Disconnect electrical power
before installing dishwasher.
Failure to do so can result in death
or electrical shock.
Attention:
The installation position of the dishwasher should be near the existing inlet, drain hose
and power cord.
One side of the cabinet sink should be chosen to facilitate the connection of the drain
hose on the dishwasher.
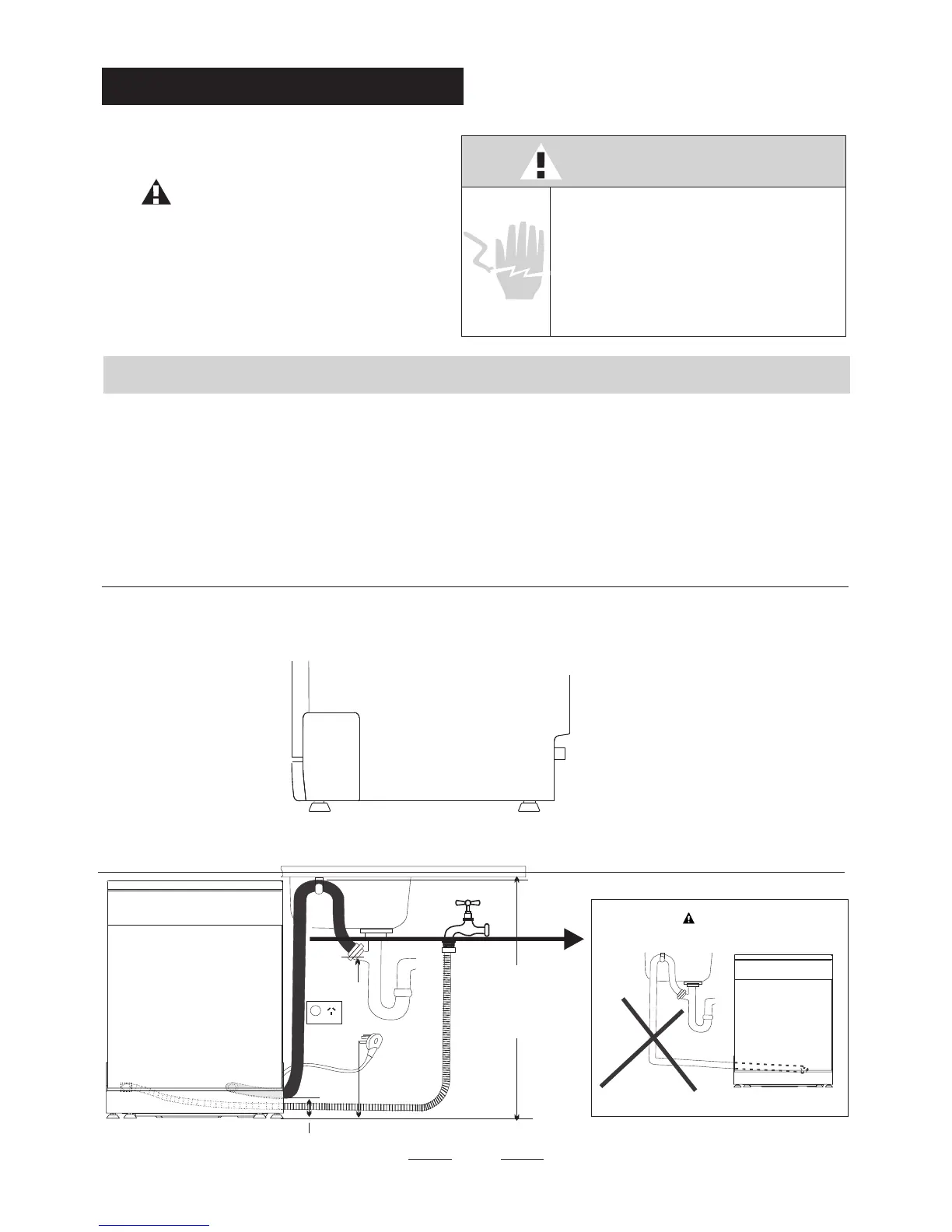
Installation preparation
Note:
supply hose)
please check the accompanying installation accessories(hook for drain hose, water
4.Installation instruction
Once the appliance is positioned,adjust the feet (screwing them in or out) to adjust the
height of the dishwasher, making it level (In any case, the appliance should not be inclined
more than 2 DEGREES TO ENSURE CORRECT OPERATION)
Levelling the Appliance
Drain pipe connection
Max 1000mm
Min 400mm
FRONT VIEW
Inlet pipe connectorDrain pipe connector
POWER OUTLET
SINK
DISHWASHER
Min 100mm
WARNING!
DO NOT BEND IN ANY WAY !
4

Related product manuals